Команда архитектурного бюро «ЛВА-Интерьер» создала пластичное и функциональное пространство семейной квартиры, наполнив его узнаваемыми авторскими решениями.
Площадь: 460 кв. м
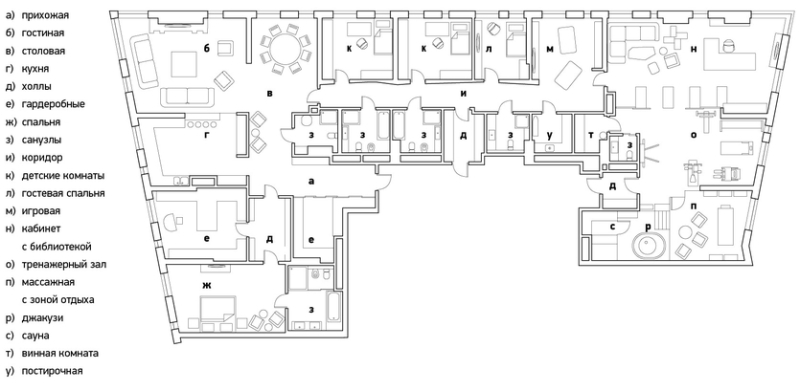
Эту видовую квартиру в элитном столичном ЖК на юго-западе Москвы можно назвать примером смелой пространственной трансформации. Интерьер создавался в несколько этапов. За время проектирования молодая семья заказчиков заметно выросла, и к началу строительных работ стало очевидно: первоначальная площадь уже не отвечает всем потребностям, и нужно расширяться, дополняя новыми детскими и игровыми зонами. Свои коррективы внесла и пандемия: к списку приоритетов добавились рабочие места для родителей, а также персональные спортивная и спа-зоны. «Пространство фактически сложилось из нескольких объединенных лотов, занимающих половину этажа. В результате возникла редкая для многоквартирного дома ситуация: схема функционального зонирования квартиры сопоставима с планировочной структурой одноэтажного индивидуального дома», — рассказывает руководитель бюро архитектор Анна Карпова.

Вид на единое пространство столовой и гостиной. «Этот интерьер насыщен современной живописью и арт-объектами. К счастью, заказчики располагают обширной коллекцией — и одна из наших ключевых задач заключалась в том, чтобы грамотно разместить ее: обеспечить удачный обзор и продуманное освещение каждого экспоната», — рассказывает Анна Карпова. Одна из таких живописных работ (автор Дмитрий Шорин) украшает зону столовой. Обеденный стол и стулья, Baxter (Бакстер). Люстра, Paolo Castelli (Паоло Кастелли).

Вид из гостиной на столовую и кухню. Фактурность пространству придают медные панели De Castelli (Де Кастелли). Их глубокий теплый оттенок перекликается с обивкой дивана от Minotti (Минотти). Стеллаж, Ceccotti Collezioni (Чекотти Коллецьони). Журнальный стол, кресло, Minotti (Минотти). Люстра, Italamp (Италамп). Ваза — из личной коллекции хозяев.

Для гостиной была спроектирована индивидуальная стойка для домашнего кинотеатра, исполненная российскими краснодеревщиками из дуба с панелями-вставками из черной буйволиной кожи.
Усложняло решение планировочной задачи односторонняя ориентация фронта окон, а также расположение «мокрых» зон и, как следствие, риск образования протяженных коридоров, типичных для подобных планировок. В итоге архитекторам удалось логично разделить жилое пространство на четыре функциональных блока, каждый со своей четкой ролью. Композиционным центром квартиры стала общая парадная зона: пространства гостиной, столовой и кухни органично перетекают друг в друга, образуя связную планировочную структуру.

Зона кухни. Кухня, Tabula Cucine (Табула Кучине). Барные стулья, Baxter (Бакстер).

Слева зона кухни. Справа столовая. Художественный акцент столовой — барельеф «Альпинисты» работы известного современного скульптора Григория Эмви (Масленникова), созданный специально для этого проекта. Обеденный стол, Baxter (Бакстер).

Для облицовки стен, обращенных в столовую и гостиную, авторы проекта спроектировали асимметричные медные панели разного оттенка, которые специально для этого проекта были выполнены на производстве в Италии. «Мы много используем авторских столярных изделий, декоративных панелей и предметов мебели, решающих комплексно задачу организации уникального пространства», — отмечает Анна Карпова. Кресла, столик, Paolo Castelli (Паоло Кастелли).
Витражное остекление не только наполняет ее солнечным светом, таким ценным для средней полосы, но и раскрывает панорамные виды на Москву, превращая городской ландшафт в динамичный элемент интерьера. Кухонную зону отделяет от холла сдвижная перегородка, которая усиливает функциональную гибкость пространства. В левом крыле квартиры находится приватный хозяйский блок, состоящий из спальни, ванной комнаты и гардеробной — это фактически автономная квартира в общем объеме. «Таким образом планировка реализует принцип «разделения без изоляции»: четкое зонирование сочетается с визуальными и пространственными связями между функциональными частями», — отмечает Анна.

Фрагмент интерьера библиотеки. Журнальный стол, Arketipo (Аркетипо). Диван, Morbidone (Морбидонэ). Люстра, Contardi (Контарди).

Для кабинета с библиотекой архитекторы специально разработали сложную систему с двусторонними стеллажами для книг, часть из которых отделяет рабочее пространство, и зону отдыха от спортивного зала и спа. В кабинете по индивидуальному проекту создан трансформирующийся стеллаж и стена для документов за рабочим столом. Письменный стол и рабочее кресло, Poltrona Frau (Полтрона Фрау). Светильник, Contardi (Контарди).
К общему пространству гостиной примыкает коридор, выполняющий функцию коммуникационного центра. Он связывает группу детских помещений (спальни с ванными комнатами и игровую), обеспечивая логичную организацию приватной зоны для младшего поколения. Далее коридор ведет в многофункциональный объем, где сгруппированы помещения рекреационно-оздоровительного и рабочего назначения — зона спа (спортзал, бьюти-комната, сауна), домашний офис и библиотека. «Архитектурно планировочное решение этого блока демонстрирует принцип модульной организации, где каждое помещение сохраняет автономность, но при этом интегрировано в общую систему через единую ось коммуникации. Такое построение минимизирует пересечения функциональных потоков и создает условия для вариативного использования пространства», — поясняет Анна.

Стена за изголовьем кровати оформлена индивидуальными шпонированными панелями из палисандра. Шпон искусно разложили рисунком «шеврон» и дополнили вертикальными вставками из латуни. Кроват, прикроватная тумба , люстра, подвесные светильники — всё Paolo Castelli (Паоло Кастелли).

Фрагмент спальни хозяев. Журнальный столик, Minotti (Минотти).
Стилистической основой интерьера стало направление timeless contemporary (контемпорари вне времени) с фрагментарной интеграцией этнических мотивов и арта. «Мы не гонимся за строгим соблюдением приемов какого-то определенного стиля. Более важным для нас является уместность примененных решений, актуальных долгое время, и создание положительного эмоционального заряда. Сейчас такие интерьеры принято характеризовать как дофаминовые. А еще интерьер должен выдерживать долгий взгляд, то есть его интересно рассматривать в деталях. Принципиальна умная пластичность: когда пространство, подобно живому организму, растет вместе с теми, кто в нем живет, сохраняя при этом свою сущность и характер. Заказчики хорошо знали наш подход по предыдущим совместным проектам. Благодаря сложившемуся доверию работа шла легко — когда архитектор и клиент разделяют общие ценности, путь к результату приносит радость от процесса», — заключает Анна Карпова.

Мебель в детских комнатах создана по индивидуальным эскизам проектной группы «ЛВА-Интерьер» и изготовлена на отечественном производстве. Рабочее кресло, Moll (Моль).

Ванные комнаты приватного блока. «В наших интерьерах много природных материалов, и камень один из них. Мы ценим его за многообразие оттенков и текстур, а также за прекрасные эксплуатационные характеристики. Предпочтение отдаем большеформатной слэбной укладке, которая позволяет работать как с большими пространствами, так и с маленькими помещениями. Это своего рода визитная карточка нашего бюро», — объясняет Анна Карпова.

Планировка.