Эта квартира находится в московском ЖК Carre Blanc — напротив Храма Христа Спасителя, рядом с Кремлем и Пушкинским музеем.
Площадь: 128 кв. м
Светлый респектабельный интерьер, с антиквариатом и авторской мебелью — таково было пожелание хозяев, состоявшейся семейной пары. В основном супруги живут в загородном доме, а эта квартира была задумана как приятное место, где можно остановиться, например, после выхода в театр. Автор проекта Ирина Линецкая, основатель BUREAU186, создала здесь элегантное многослойное пространство, исключительно комфортное и полностью отвечающее поставленной задаче.

Автор проекта Ирина Линецкая, руководитель дизайн-бюро BUREAU186.
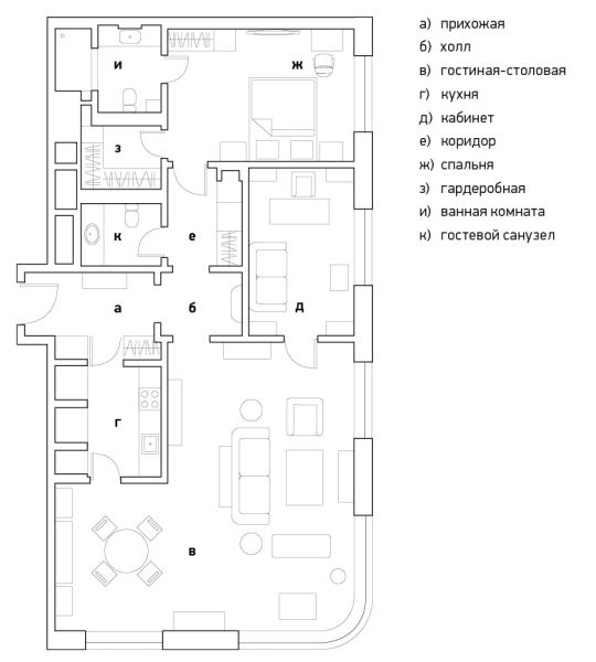
Квартира делится на парадную и приватную части: в первой расположены гостиная с кухней, кабинет и гостевой санузел, во второй — спальня, ванная комната хозяев и гардеробная. Виды, которые с двух сторон открываются из большой и светлой гостиной со столовой зоной, — на Москву-реку и Храм Христа Спасителя — определили ее расположение. Вход в кухню, помимо входа из гостиной, — через коридор, чтобы можно было сразу занести продукты и доставки, не проходя через гостиную. Круговая планировка — прием классической дворцовой планировки, и здесь он работает в едином контексте с роскошными материалами, отделкой ювелирного уровня, авторской мебелью.

Арочный проем отделан шпоном эбенового дерева под лаком; абажур настольной лампы (Delisle), созданной 20 лет назад по мотивам светильника гения ар-деко Жака-Эмиля Рульманна, повторяет его очертания. Еще один знаковый предмет — столик Guéridon фабрики Pozzoli с подстольем в виде борзой из алебастра, «держащей» столешницу из черного дерева. На диване — декоративные подушки с вышивкой, ручная работа. Такая же вышивка украшает шторы. Всё текстильное оформление интерьера создано в студии декора Lisse. Темная лаковая мебель, хрустальные люстры, Lisse. Мягкая мебель, консоль и журнальный стол, Alfonso Marina.

Фрагмент гостиной. Буфет из эбенового дерева с хрустальными вставками на латунных ручках, Lisse.
Ирину Линецкую впечатлила историческая преемственность в архитектурном облике здания: его лаконичные фасады украшены рельефным орнаментом, прототипом которого стал узор на фасаде Георгиевского собора в Юрьеве-Польском (построен в первой трети XIII века). Архитектура дома повлияла на стилистическое решение интерьера: прямые линии, лаконичные формы, в основе цветовой палитры — светлые оттенки. Кружевная вязь узора, такого же, как на фасаде, стала в этом интерьере выразительным акцентом: вышитый орнамент ручной работы украшает шторы и подушки, читается в инкрустациях матовых хрустальных вставок на ручках мебели Lisse. Акценты проставлены черным и золотым. «Что касается стилистики пространства, — рассказывает автор проекта, — за основу нами были взяты отдельные составляющие стиля ар-деко: контраст темного и светлого, строгие геометричные формы, глянцевые поверхности мебели и обрамления арочных порталов, а также оттенки золота. Но мы пересмотрели классический стиль 1920-30-х годов. Это современное, авторское прочтение ар-деко».

Столовая. Обеденный стол, витрины, комоды, Lisse. Кресла из палисандра — антикварные, дизайн Damon & Bertaux, куплены в Париже на знаменитом антикварном рынке Le marché aux puces de Saint-Ouen. На столе — ваза Lalique, бутик Maison.

В гостиной — эффектное угловое остекление, словно приглашающее полюбоваться пейзажем исторического центра Москвы. Интерьер в этой части гостиной сформирован выразительными штрихами: постаментом со скульптурой из черного мрамора (творение современного французского скульптора Бертранда Донно, прославившегося своими работами из натурального камня), и банкеткой Alfonso Marina с кованым основанием. На шторах — ручная вышивка в виде кружевного орнамента, студия декора Lisse.

Кухня с фасадами с металлизированной отделкой цвета золота в сочетании с черным мрамором столешницы выглядит подчеркнуто парадно. Пол, отделанный светлым матовым мрамором Burdur Beige от компании Alpary Marmi, прибавляет помещению «воздуха». Кухня изготовлена на заказ компанией «Т-Три». Антикварный сервиз, как и посуду, подобрали специально для проекта.
В интерьере много эксклюзивной, индивидуальной мебели, которую Ирина Линецкая вместе с командой BUREAU186 спроектировала специально: витрины, комоды, стол, буфет, консоль и письменный стол — в отделке шпоном черного или эбенового дерева и с хрустальными вставками на ручках из латуни. Совместно с компанией «Артпаркет» специалисты бюро разработали инженерный паркет из ценных пород дерева, включая уникальную обработку, тонировку и финишное покрытие. Антикварные предметы мебели и декора дополняют атмосферу негромкой, но весьма убедительной респектабельности, а картины и скульптуры привносят нотку артистического шика.

В прихожей создана впечатляющая архитектурная композиция из арочных порталов, компания «Т-Три». Консоль, Lisse.

Спальня оформлена в мягких сливочно-бежевых тонах. Стены декорированы обоями (Holland&Sherry) со вставками из латуни. Туалетный столик окрашен кистью с эффектом мазков и покрыт глянцевым лаком. Портьеры — из ткани Pierre Frey. Кровать и тумбы, Hugues Chevalier. Люстра и бра, Hudson Valley. Постельное белье, Lisse.

Ванная комната при спальне хозяев продолжает тему авторского ар-деко. Мраморная мозаика лазерной резки с металлическими элементами, в нише — зеркальная тумба с мраморным подстольем. Люстра, бра — антиквариат 1930-х годов Muller Freres (Франция).
Гостиную украшают вазы по дизайну Рене Лалика (Lalique), включая редкую фиолетовую вазу «Лучники», являющуюся предметом коллекционирования и антиквариата, а также лампа Delisle по мотивам знакового светильника Жака-Эмиля Рульманна. В ансамбль к обеденному столу подобраны четыре антикварных кресла, созданные в 1933 году дизайнерским дуэтом Damon & Bertaux для зала заседаний Национального банка торговли и промышленности в Париже. У дивана — столик Guéridon фабрики Pozzoli с подстольем в виде борзой из алебастра. Все эти предметы выбраны Ириной Линецкой неслучайно. Они не только формируют стиль, но и имеют глубокое символическое значение. Так, черное дерево олицетворяет стихию огня, энергию и силу, обладает невероятной притягательностью благодаря своему темному цвету и величественной элегантности.

В кабинете — эффектная симметричная композиция из стеллажей и рабочего стола. На стене — графика из галереи ЗНУИ. Стеновые панели — из ткани Dedar. Портьеры — из ткани Ralph Lauren Home. Пол отделан паркетом из ценных пород дерева, компания «Артпаркет». Диван, Ralph Lauren Home. Письменный стол, Lisse. Люстра, Baker. Интерьерная краска, Little Greene. Изготовление встроенной мебели, компания «Т-Три».

Тема арочного портала, отделанного шпоном эбенового дерева, интересно интерпретирована в гостевом санузле: зеркало в нише множит отражения, добавляя пространству глубины. Люстра — антикварная (Франция).

Планировка.