Основатель и ведущий дизайнер студии REFRESH architecture&design Алена Абрамова создала персонализированное пространство, где царит атмосфера камерного вечера в кругу близких, а темные тона создают особенную глубину, уют и многослойность.
Площадь: 146 кв. м
В самом сердце Липецка для молодой семьи была создана «квартира-настроение». Главным пожеланием заказчиков стала атмосфера расслабленного домашнего вечера за просмотром фильмов и настольными играми с друзьями. Команде REFRESH architecture&design во главе с основателем и ведущим дизайнером Аленой Абрамовой предстояло воплотить этот образ в современном минималистичном пространстве, наполнить его текстурой и глубиной.

Объединенное пространство кухни-гостиной. Гибкий светильник над диванной зоной придает пространству динамику, при этом отлично сочетается с линейными светильниками Flos в зоне кухни и столовой. Диван, Nicoline. Кресло, Poliform. Журнальный столик, Сattelan Italia. Ваза Woonstores.

Дизайнеры подобрали модульный диван Nicoline с мягкими формами. А главным героем интерьера стало культовое кресло Le Club (Poliform) с плавными изящными линиями в духе 70-х. Журнальный столик Arena, комоды Tudor — всё Сattelan Italia. Ковер, Ковер.ру. На комоде — ваза работы Софии Карнукаевой, на журнальном столе — ваза Woonstores.
«После первой встречи с заказчиками рождается главный образ — атмосфера, в которой я могу их представить, — говорит Алена. — В данном случае ключевой стала их просьба: гостиная в темных тонах и настроение пятничного вечера. Так появилась цветофактурная палитра: брашированная бронза, черный сланец, тонированное стекло, жженое дерево, замша и яркий керамогранит. Получился стильный, брутальный интерьер, с немного драматичной атмосферой».

Столовая. Обеденный стол Dragon Keramik Premium, Cattelan Italia. Обеденные стулья, Bonaldo. Люстра над столом, Flos. На столе — вазы Forest is Calling.

Зона кухни. Для отделки стен и части острова использован крупноформатный керамогранит Les Віjоuх от Rex Ceramiche, который очень эффектно смотрится на фоне черных матовых фасадов кухонной мебели. Поднос, Woonstores.

Кухонный остров спроектирован по индивидуальным чертежам автора проекта. Над островом — люстра Flos. Барные стулья, Bonaldo. Кувшины и стаканы Ferm Living, L’Appartment.
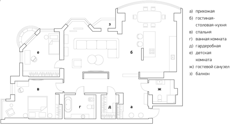
Исходная планировка с лабиринтом маленьких комнат и коридоров не соответствовала запросу на свободу и «воздух». Решением стала масштабная перепланировка: большая часть площади была отведена под единое пространство кухни-гостиной. Ее разбили на две функциональные зоны — мягкую диванную и кухонную с островом и обеденным столом. Для зонирования использован легкий стеллаж с эффектными композициями из керамики и книг. ТВ-зона с биокамином интегрирована в систему хранения для эргономичности общего пространства. «Также в процессе перепланировки мы присоединили к комнатам все балконы, и благодаря панорамным окнам открылся красивый вид на динамичный ночной город, чей ритм отозвался в интерьере», — дополняет автор проекта.

Спальня хозяев. Кровать, Ditre Italia. Прикроватные тумбочки, журнальный столик, кресло — всё Pianca. Торшер, Luceplan. Панно, Анастасия Дурбажаева.

Будуарная зона в спальне. Туалетный столик Chloe Vanity, Pianca. Пуф, Katsu. На столике — птички Normann Copenhagen, L’Appartment.

Ванная комната. Мелкоформатный керамогранит, 41zero42. Ванна, Astra Form. Смесители, Fima Carlo Frattini. Освещение, Donolux.
Для создания камерной и приглушенной атмосферы выбрана темная палитра, которая придала пространству объем и глубину. Многослойность достигается игрой фактур: в отделке стен кухни-гостиной крупноформатный керамогранит контрастирует с матовыми черными фасадами в зоне кухни.

Детская комната. Кровать Chaarme, Calliope. Столик, Koza Home. Освещение, Donolux. Постельное белье, Ateliertati. Настольная лампа New Works, скульптура птички Normann Copenhagen, L’Appartment. Картина работы Аси Паниной, Sample. У панорамного окна обустроена уютная рабочая зона для ребенка. Пуф, Katsu. Письменный стол, Bo Concept. Стул, Cattelan Italia. На столе — настольная лампа Marset, L’Appartment.

Прихожую и гостиную разделяет легкий стеллаж Airport от Cattelan Italia, на котором эффектно выстроены композиции из книг и керамики (вазы Анны Жуковой и Woonstores). Пуф Erys, Ditre Italia. Зеркало, Cattelan Italia.

Прихожая. Стены отделаны шпоном, на полу — керамогранит Les Віjоuх, Rex Ceramiche. Консоль, Porada. Панно, работа Анастасии Дурбажаевой. Скульптура, Дарья Куприянова, Daku Ceramics.
«Я не сторонник сиюминутных трендов, — размышляет Алена. — Я за персонализированные пространства, созданные для жизни. Именно такие концептуальные интерьеры остаются актуальными годами. Эта квартира — тому доказательство: ее реализация была приостановлена на год, но результат выглядит современно и свежо. Создание интерьера для меня — особый драйв. Любовь и восхищение материалами, предметами мебели и искусством заряжают. Я бесконечно наслаждаюсь этим и дарю правильный импульс хозяевам пространства — относиться с особым трепетом и любовью к тому, что их окружает. Это чувство восхищения навсегда остается с ними».

Гостевой санузел. Мелкоформатный керамогранит, 41zero42. Зеркало, напольная тумба с раковиной, Scarabeo. Сантехника Fima Carlo Frattini. Бра, Aromas del Campo.

Планировка.