Сергей Трегубов воплотил эмоцию чувственности и физического единения в интерьере небоскреба «Москва-Сити». Мультифактурные поверхности, восточные мотивы и авторское искусство создали оазис покоя, где панорама столицы становится частью интерьера.
Площадь: 85 кв. м
Необычный по замыслу проект, созданный дизайнером Сергеем Трегубовым, расположен в одной из башен «Москва-Сити». «Проект начался с неожиданного предложения. Меня, как креативного дизайнера интерьеров, порекомендовала Милена Морозова. Будучи стилистом, она работала над оформлением офиса заказчика. Наша первая беседа сразу задала тон: клиент ожидал смелых, неординарных решений и, доверяя рекомендации, готов был предоставить мне полную свободу творчества.
Это доверие и стало основой для нашей личной встречи, — начинает рассказ автор проекта Сергей Трегубов. — Уже тогда я задал неожиданный вопрос: «Какую эмоцию должен вызывать интерьер?» Заказчик не раздумывая ответил: «Подумайте через призму чувственности». Он подчеркнул, что эта квартира предназначена для отдыха, восстановления сил и энергии и возможности одновременно находиться в гуще городской жизни и в состоянии глубокого расслабления. Задача сложная, но тем интереснее».

Преимущество просторной гостиной — панорамные окна в пол. За угловым диваном возвышается массивный бонсай. Колонна, как и центральная перегородка в виде стилизованной скалы, — это гипсовый барельеф, созданный скульптором Юлией Мекшун и покрытый каменной замшей, чтобы тактильно приблизиться к фактуре натурального камня.

Гостиная, вид на колонну и большой бонсай. Диван Avalon, Marac. Журнальный столик из латуни Monolith, приставной столик из латуни Be Mine — всё Henge.

Гостиная. Диван Avalon, Marac. Журнальный столик из латуни Monolith, приставной столик из латуни Be Mine — всё Henge. Банкетки из дерева и кожаных веревок Giano, Flexform. За диваном — лампы Keglen, Louis Poulsen. Ковер Dazzle, Dovlet House.

Кухня. «Кухня была спроектирована мной с нуля совместно с Silver Home. Хотелось сделать ее менее заметной для глаз. Фасады, стилизованные под стеновые панели, в закрытом виде представляют собой элегантную деревянную поверхность. Внутренняя отделка шкафов — наборный шпон, который напоминает мягкое кашемировое пальто», — дополняет Сергей Трегубов. Барный блок с металлическими полками для бокалов и коллекционных бутылок размещен в правой части кухни. На кухне установлен антигравитационный стол, Сергей Трегубов придумал его, вдохновившись искусством балансировки камней Икэниси Дайсукэ. Конструкция создает иллюзию хрупкого равновесия, готового разрушиться от малейшего прикосновения, — метафора нежности и уязвимости человеческих отношений.
Отправной точкой стал дизайн через тактильность и мультифактурность. Автор сразу отсеял очевидные символы, избегая прямолинейных трактовок: вульгарность, агрессивный красный цвет страсти, высококонтрастный черный и любые откровенные изображения обнаженного тела в искусстве. «Размышляя над идеей гармонии двух людей, я пришел к образу единения «кожа к коже», — дополняет Сергей.

Спальня. Напротив кровати расположена мраморная консоль Keope, Longhi. Над консолью висит панно, придуманное автором проекта Сергеем Трегубовым и реализованное скульптором Юлией Мекшун, — «4 стихии». «Гипс и металл символизируют инь-ян, металл — воду, горы — землю, ветер — воздух, а огонь выражен через барельеф женской фигуры, укрытой влажной тканью в момент наивысшего наслаждения», — дополняет Сергей. Кровать в спальне расположена так, чтобы пробуждение сопровождалось видом на пульсирующий ритмом город. Стена в изголовье кровати имеет волнообразную форму, передающую идею заботы. А в центре — плетеная стена из металла, кожи и тканевых ремней, созданная по дизайну Сергей Трегубова.

Через раздвижные стеклянные перегородки из спальни можно попасть в гардеробную с прозрачной стеной, разработанную индивидуально для этого проекта.

Ванная комната — истинный оазис спокойствия. Обилие живых растений отсылает к Бали. Скала с рисунком прибрежного песка, стены, покрытые микроцементом, имитирующим тонированный полированный бетон, и натуральный деревянный пол создают атмосферу покоя. В душевой потолочная лейка создает эффект водопада и тропического ливня, а уличная лейка-труба напоминает о ритуале ополаскивания после моря, усиливая ощущение пляжного отдыха.
Чтобы подчеркнуть открытость к экспериментам, было выбрано смелое решение: убрать все межкомнатные двери, оставив лишь одну — в ванную комнату. Входная группа со встроенным шкафом плавно перетекает через волнообразные панели в зеркало, визуально расширяющее пространство. Особого внимания заслуживает ручка шкафа, созданная специально для проекта: ее форма имитирует случайно зажатую дверью ткань плаща, намекая на функциональность шкафа, а вторым слоем — на страстную поспешность, с которой вещи сбрасывались в пылу встречи. Центральная перегородка в зоне гостиной, одновременно служащая основой для ТВ, — гипсовые барельефы ручной работы Антона Супонина, расписанные художником вручную.

Прозрачная ванна Kristall от Abber цвета закатного солнца расположена прямо в спальне, на каменном постаменте. Днем блики от ванны рисуют янтарные орнаменты на стенах.

Прихожая. Стены здесь и в других зонах покрыты шпонированными дубовыми обоями, потолок декорирован составом под замшу, а волнообразные элементы из МДФ с дубовым шпоном добавляют архитектурной выразительности.
Этот чувственный интерьер, рожденный из полного доверия между заказчиком и дизайнером, стал воплощением эмоционально заряженного пространства, в котором городская энергия встречается с глубоким покоем и интимностью. Здесь прикосновения превращаются в язык, а интерьер — в арену откровенного диалога.

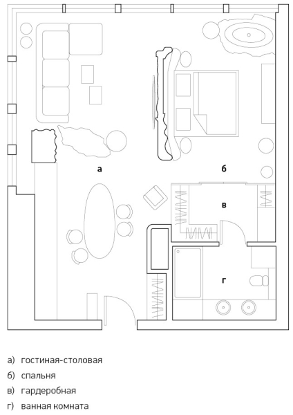
Планировка.