Юлия Долина и Филипп Черников из студии ch.archteam создали интеллектуальное пространство для уединения, отказавшись от декора в пользу бесшумного фона для уникальной коллекции книг и искусства.
Площадь: 253 кв. м
Этот загородный дом из клееного бруса стал для дизайнера Юлии Долиной и архитектора Филиппа Черникова проектом трансформации — не только пространства, но и восприятия. Первоначальная концепция в духе современной неоклассики с обилием декора уступила место новому видению заказчика: он пожелал видеть сдержанное, современное и дышащее пространство для уединенного отдыха и приема близких. Ключевыми стали слова — функциональность, личный смысл, тактильность натуральных материалов и отсутствие визуального шума.

Кабинет. Кресла Eida Armchair, журнальный столик Ozawa Lounge Table — Modénature. Ковер, Ansy Gallery. Декор, Izzi Decor, Designboom. Картины Татьяна Кирикова. Каминный портал из мрамора Crema Marfil выполнен по эскизам авторов проекта. На полу — инженерная доска Fine.

Вид на каминную зону и стену напротив камина.
Пространство должно было стать нейтральным, но выразительным фоном для уникальной коллекции искусства и книг. «Наша задача заключалась в тактичном переосмыслении исходной идеи проекта, ранее предложенной заказчику другим дизайнером. Архитектурная планировка и несущие стены были неизменны, поэтому мы сосредоточились на деталях. Мы отказались от тотальной облицовки декоративными деревянными панелями в пользу светлого, нейтрального фона, чтобы создать чистый холст для личных коллекций владельца — библиофила и тонкого ценителя искусства. Особое внимание было уделено системам хранения и библиотечным системам, интегрированным в архитектуру дома», — говорит Филипп Черников.

Гостиная. Диван Bellport, консоль Nara — всё Poliform. Приставные столики Avilum Side Table и Aplos Coffee Table, Modénature. Люстра Reef, DesignHeure. Настольная лампа Atollo Satin Bronze Medium, Oluce. Подушки, Lanohome. Ковер, Ansy Gallery. Декор, Izzi Decor, Designboom. Библиотека на 2-м этаже выполнена на заказ Санкт-Петербургской мебельной мастерской Алексея Тискина. Кушетка Entre Coeur Daybe, консоль Albert Console — всё Modénature. Приставной столик Duo, Ceccotti. Плафоны (над библиотекой) Reflexio 8532 от Linea Light (Stilnovo). Подвесной светильник Infinita, Vistosi. Картина, Ольга Рикун.

Кухня-столовая. Кухня, Dantone Home. Техника, Miele. Люстра Quadrante, Tooy. Картина, Ольга Рикун. Декор Izzi Decor, Designboom.
Особую сложность проекту придала работа с «живым» материалом — клееным брусом, требующим нестандартных инженерных решений для учета усадки. Каждое решение, от крепления гипсокартона до монтажа винтовой лестницы, требовало инженерной точности и специальных технических решений, таких как теневые профили и панели с вертикальными прорезями для креплений, позволяющие дому «жить своей жизнью». Сердцем дома стала двухсветная гостиная — аллюзия на традиционные усадебные библиотеки с рядами книг.

Винтовая лестница, ведущая на второй этаж, была изготовлена по индивидуальным чертежам специально для этого проекта. Справа библиотека второго этажа. Особое внимание было уделено структуре стеллажей, чтобы вместить обширную коллекцию книг. Все стеллажи изготовлены по индивидуальным эскизам совместно с Санкт-Петербургской мебельной мастерской Алексея Тискина.
Ее ритм задают стеллажи, устремленные к потолку, и мраморный портал камина высотой 2,4 метра. Он подчеркивает пропорции гостиной и поддерживает атмосферу сдержанной монументальности, присущей всему проекту. Центральным элементом пространства стала трехметровая люстра Reef от DesignHeure. Ее графичный скульптурный облик меняется в зависимости от ракурса и игры естественного света. Паря в пространстве, она объединяет оба уровня, становясь связующим звеном между архитектурными вертикалями. Интерьер балансирует на грани эпох и стилей.

Спальня. Кровать MyPlace, Flou. Тумбочки Cidori, Sangiacomo. Постельное белье, Claire Batiste Atelier. Декоративный текстиль, Izzi Decor. Панно над кроватью, Кристина Добровольская. Ковер, Ansy Gallery. Банкетка Awaya Bench, Modénature. Приставной столик, Cassina. Картины, Татьяна Кирикова. Гипсовая лепнина, «Дикарт». Торшер, Masiero.
Классические каминные порталы соседствуют с постмодернистскими креслами Modenature, а строгая мебель Poliform — с восточными мотивами раздвижных перегородок. В результате получилось сдержанное, интеллектуальное пространство, где нейтральная палитра и отсутствие визуального шума создают идеальный фон для жизни, мыслей и диалога с искусством.

Ванная комната. Все санузлы в доме оформлены крупноформатным керамогранитом Mirage с текстурой бетона. Сантехника, Hansgrohe. Тумба индивидуального изготовления, мастерская Алексея Тискина.

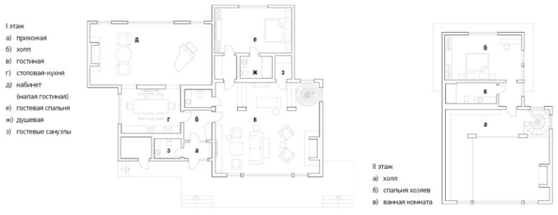
Планировка.