Архитектуру и интерьер этого дома под Архангельском автор проекта Антон Семикин осмыслил как единую с окружающим ландшафтом композицию. Лаконичное пространство с выразительными акцентами гармонично вписывается в природный пейзаж.
Площадь: 280 кв.м
История началась с простого типового проекта дома в духе шале, который заказчик приобрел для строительства дачи выходного дня. Уже на этапе покупки проекта владелец планировал доработать его под свои желания. В процессе строительства подняли высоты этажей и скорректировали планировку, начали менять расстановку окон, появилась идея фасадных решений в духе «норвежского дома». Но вместе с улучшениями стали нарушаться пропорции и цельность исходного замысла. «В этот момент, — вспоминает Антон Семикин, — владелец дома по рекомендации пригласил меня для консультации по небольшому вопросу о конвекторах отопления. В процессе обсуждения я обратил внимание на некоторые недостатки исходных решений и несогласованность новых идей. По просьбе заказчика я провел комплексную оценку всех существующих решений проекта, и именно после этого работа над домом полностью перешла ко мне».

Двухсветное пространство первого этажа. Каждая зона оформлена как самостоятельный ансамбль, при этом соблюдена общая эстетическая линия — элегантный лаконизм. Диван Freeman, Minotti. Камин Filiofocus, Focus. Люстра Globe, Oluce. Торшер Balance, Vibia. На полу и стенах — натуральный камень Nero Marquina.

Вид на гостиную-столовую со второго этажа. Роскошное панорамное остекление в «два света» фокусирует взгляд на рукотворном ландшафте, перетекающем в природный. Люстра Q2, Baxter.
Архитектор предложил заказчику вернуться к концепции шале, но в современной интерпретации, согласовав архитектуру с имеющейся на тот момент конфигурацией здания. Эскизы фасадов были утверждены сразу и реализованы практически без изменений. Параллельно велась работа над интерьером.

Кухня отделена от гостиной стеклянной раздвижной перегородкой. Чистые линии, почти монохромная палитра. Это неочевидно, но кухня была сразу дополнена всем необходимым. «При необходимости мы занимаемся полной комплектацией проектов, включая все мелочи. Например, мы можем очень быстро собрать практически профессиональный набор для кухни для опытной хозяйки дома, которая любит готовить, — говорит Антон Семикин, — и это будет не просто стандартный комплект посуды и приборов, а две-три сотни аксессуаров, контейнеров, устройств». Кухня Artematica, Valcucine. Барные стулья Ode, Giorgetti. Раздвижная перегородка, Rimadesio. Подвесной светильник I Lucci Argentati, Terzani.

Слева лестница, объединяющая этажи дома, — предмет гордости архитектора. Внешне легкая, она непроста конструктивно: в частности, плоскость стекла ограждения вывешена между пролетами лестницы, образованными консольными ступенями. Справа зона отдыха в холле на втором этаже. «Здесь невероятные виды через сад на реку и лес, — говорит автор проекта. — Все важные зоны в доме учитывают эти виды. Вид из главной спальни в эту же сторону. На балконах предусмотрены зоны отдыха для созерцания, так же, как и на открытой террасе на первом этаже на улице». Кресла Tape, cтолик Ring, Minotti. Люстра Q2, Baxter.
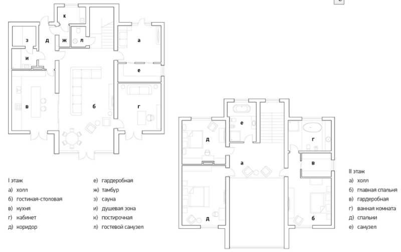
«Планировочное решение — это основа интерьера, — объясняет автор. — На этой основе можно потом создать по желанию заказчика практически любой образ». Здесь же планировка изначально была нелогичной. При входе отсутствовала гардеробная, в гостевой санузел нужно было проходить через технические помещения, а камин располагался на стене в центре гостиной, но почему‑то в отдалении от диванной группы и обеденного стола и без собственной зоны отдыха — он просто был сам по себе. Пространство «второго света» было расширено так сильно, что по помещениям второго этажа приходилось ходить по узким коридорам. «Мы продлили перекрытие второго этажа совсем немного — примерно на метр, — рассказывает Антон. — Это никак визуально не отразилось на «втором свете», но позволило сделать планировку второго этажа логичной и функциональной».

Слева кабинет. Письменный стол Victor, Lema. Витрина Wall System, Poliform. Диван Passion, CTS Salotti. Люстра Less System, Venicem. Картина, автор Ольга Долженок. Справа фрагмент главной спальни. Туалетный столик Trilogy (Capital) с круглым зеркалом Birk (Meridiani) продолжает тему круга, заданную светильниками. Кресло Amélie, Minotti.

Одна из гостевых спален. Кровать Husk, B&B Italia. Кресло Take a Line For a Walk, Moroso. Инженерная доска, Finex.
В итоге удалось предусмотреть в доме все необходимое для проживания супругов, к которым часто приезжают в гости их взрослые дети. На первом этаже разместили эффектное парадное пространство гостиной-столовой, кухню, кабинет, гардеробную при холле, сауну с душевой и гостевой санузел, а также необходимые технические помещения. На втором — спальни: главную спальню с ванной комнатой и гардеробной, а также две гостевые спальни и санузел.

Слева спальня. Здесь создана уютная, обволакивающая атмосфера: мягкие формы и тактильно приятные ткани. Кровать Amal, Flou. Консоль Modular Swing, Presotto. Кресло Bea, Lema. Люстра Heracleum II, светильник над столом Perch Light Branch, Moooi. Напольное покрытие, Finex. Справа ванная комната при спальне хозяев — исключительно эффектное пространство, продолжающее основные темы парадной зоны: монохромная палитра, геометрия, контрасты. Ванна Eclipse, Antonio Lupi. Светильники Bolle, Giopato&Coombes. Аксессуары, Decor Walther.

Общий вид участка: беседка (с функцией зимнего гостевого домика) и главный дом. «На данный момент очень серьезным помощником стали нейросети, — добавляет архитектор. — Пока сложно поручить им полноценные этапы работ. Но упростить и ускорить оформление своих идей в простой эскиз или концепт с образом, а также автоматизировать рутину можно уже сейчас».
В интерьере сделан акцент на cдержанную роскошь и архитектурную выразительность. Пространство наполнено воздухом благодаря высоким потолкам, панорамному остеклению и лаконичному декору. «Основная идея проекта — создать гармоничное, визуально легкое пространство, в котором сочетаются геометрия, фактура и свет», — объясняет архитектор. Основным приемом стал диалог между монохромной палитрой и акцентными элементами. Интерьер строится на контрастах: матовое и глянцевое, теплое дерево и холодный камень, текстиль и металл.

Благоустройство территории и ландшафтное решение — важная часть проекта. Архитекторы ANTONSEMIKIN Studio спроектировали зимнюю беседку, фактически однокомнатный домик с водоснабжением, электрикой, кондиционированием и отоплением, а также гараж с помещением для охраны и хозяйственной частью. Ландшафтный архитектор Ми-ла Грибанова помогла спла-нировать и облагородить участок, от инженерных решений до деревьев и кустов. На фото — зона отдыха на природе. «Основной эффект, к которому мы стремились, — объясняет автор проекта, — максимальное погружение человека в окружающую природу». Мебель outdore, Concretica.
Центр притяжения дома — двухсветная гостиная с панорамным видом на пейзаж: здесь ощущается абсолютная гармония с природой. Этот дом задумывался хозяевами как дом выходного дня, но, когда все работы были закончены, стал местом их постоянного проживания. И это самая высокая «оценка» труда и таланта архитектора.

Планировка.