Светлана Дьякова и Дженни Яснец из Art Spice Studio оптимизировали планировку для жизни семьи с двумя маленькими детьми и создали роскошный современный интерьер с использованием трендовой мебели, натуральных материалов и современного искусства.
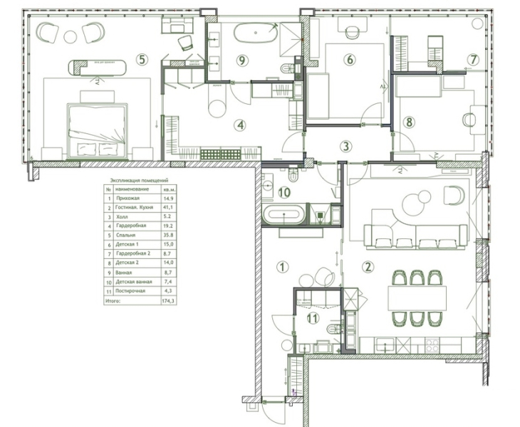
Площадь: 174 кв. м
Квартира расположена в новом петербургском ЖК «Крестовский де Люкс». Заказчики — молодая семья с двумя маленькими детьми. Родители ведут активный образ жизни, увлекаются спортом и много путешествуют.

Авторы проекта Светлана Дьякова, Дженни Яснец, Art Spice Studio.
Исходное пространство не вполне соответствовало ожиданиям заказчиков. Поэтому в первую очередь авторы проекта, архитектор Светлана Дьякова и дизайнер Дженни Яснец, тщательно поработали над планировкой, адаптировав ее для удобного и комфортного проживания домочадцев. К детским и к спальне присоединили лоджию; избавились от коридора, оставив красивый холл и сделав проходной зоной кухню-гостиную; увеличили детскую ванную и разделили детскую на две отдельные комнаты с общей гардеробной; выделили место для большой гардеробной при спальне владельцев.

Самый эффектный и стилеобразующий элемент интерьера — стена, объединяющая ТВ-зону, электрокамин и невидимую дверь в приватную зону. Диван, кресло, Eichholtz. Ковер, Lancashire Carpets. Картина, Uttermost.

Вид из холла на гостиную. Раздвижные двери-панели выполнены на заказ по эскизам авторов проекта компаний Arm Decor. Диван, Eichholtz. Паркетная доска из ореха, Siberian Forest.
Интерьер представляет собой микс элементов ар-деко, трендовой мебели, натуральных материалов (дерева, камня) и современного искусства. «У нашей студии есть свой стиль, я называю его contemporary — мы создаем модные роскошные интерьеры с легким флером классики в современном прочтении, — комментирует идею архитектор Светлана Дьякова. — В данном проекте это элементы или даже принцип ар-деко, где четкие геометрические формы сочетаются с благородными отделками. Большую роль играют и предметы искусства, так как искусство — это душа интерьера».

Неотъемлемой частью цветового решения выступают шторы из льна, хлопка и вискозы светлых тонов. Они играют второстепенную роль и выступают в качестве нейтрального фона, как продолжение стен. Диван, кресло, Eichholtz. Ковер, Lancashire Carpets.

Зона столовой-кухни. Кухня, Rossana. Обеденный стол, Casamilano Home. Стулья, Eichholtz. Светильники, Gianfranco Ferré Home.
Выбор материалов обусловлен пожеланием заказчиков, а также общим стилевым решением. В коридоре и в холле — крашеные стены с гипсовыми молдингами и деревянные панели из шпона ореха с металлическими вставками. Эксклюзивно разработанные для интерьера панели украшают общественную зону, как и огромные раздвижные двери, отделяющие холл от кухни-гостиной. В холле и коридоре на полу — светлый камень, в жилых комнатах — паркетная доска. В детских комнатах на стенах — обои ручной работы и покраска. В спальне родителей — деревянные, зеркальные и текстильные панели в сочетании с покраской.

Холл. Напольное покрытие — керамогранит Refin. Кресла, Eichholtz. Картина, Uttermost.
Благодаря контрасту светлых стен, каменного покрытия и темных ореховых панелей входная зона смотрится выразительно и эффектно. Этот же прием использован в гостиной. Темные ореховые панели, деревянные элементы в шпоне термоакации, бронзовый кухонный фартук и черный камень в противовес светлым стенам и бежевой кухне придают пространству динамику, а детали из матового золота — особый шарм. «По сути, это элегантное сочетание материалов прослеживается во всех зонах квартиры, — объясняет решение дизайнер Дженни Яснец. — Цвет появляется только в детских комнатах (розовое с серым — в одной и серое с золотом — во второй)».

Спальня хозяев. Кровать, ART Spice Studio. Прикроватные тумбы, Arm Décor. Ковер, Lancashire Carpets. Подвесные светильники, Booma. Постельное белье, Frette.

Самым сложным в спальне стало присоединение лоджии к жилому пространству, в результате чего появилась колонна. Эту несущую конструкцию превратили в красивый и функциональный элемент, который с одной стороны служит TB зоной, а со стороны окна — хранением-баром.

Ванная комната целиком отделана натуральным камнем. Тумба под раковины, душевая выполнены на заказ, компания Arm Decor. Смесители, Dornbracht.
Вопрос хранения — важная часть проекта. Светлана и Дженни запланировали шкаф для верхней одежды при входе, предусмотрели отдельную детскую гардеробную и большую проходную гардеробную при спальне хозяев, где каждая полка и ящик изготовлены на заказ, по индивидуальным меркам мебельным производством.

Гардеробная в зоне спальни, состоящая из шкафов и острова, выполнена по чертежам авторов проекта компанией Arm Decor.

Так же, как и в спальне родителей, в детских комнатах присоединили лоджию, что дало возможность сделать общую гардеробную для детей. Стеллажи из МДФ и металла изготовлены по чертежам авторов проекта компанией Arm Decor. Диван, Manifesto. Обои с ручной росписью, Fresq.

Детский санузел. Ванна, Villeroy&Boch. Тумба, Gama Decor. Смесители, Dornbracht. Унитаз, Noken. Душевой поддон, Krion. Плитка, 41zero42.
Практически вся мебель, кроме отдельно стоящих предметов в гостиной и в детских, была изготовлена по эскизам авторов проекта на производстве санкт-петербургских партнеров Art Spice Studio и является продолжением общей стилевой идеи проекта — роскошного и элегантного пространства, без лишней декоративности и избыточной предметности.

Планировка.