Центром интерьера, созданного студией ub.design для семьи с двумя детьми, стали панорамные виды на живописный парк за окном.
Плошадь: 190 кв. м
Архитектор Борис Уборевич-Боровский и его команда создали интерьер апартаментов, расположенных в элитном жилом комплексе «Вишневый сад». Несмотря на расположение на втором этаже, квартира обладает уникальным достоинством: панорамные окна открывают захватывающий вид на живописный, поросший зеленью лес — настоящий природный оазис с деревьями и птичьим пением.

Гостиная. Диван, ковер Walter Knoll. Шезлонг, Vitra. Журнальный столик, Baxter, Flat interiors. На журнальном столе Elios (Maxalto) — скульптура Анны Грачевой, Leto Ceramic. Шторы, Forma Textile. Паркет, Ebony&Co.

Фрагмент гостиной. ТВ-зона, индивидуальное изготовление «Мебельная Мастерская Сергея Семина». Кресло, Vitra. Скульптура, Александр Чичкин.
«Великолепный вид из окна стал смысловым и эстетическим центром всего нашего проекта, — начинает рассказ руководитель проекта Борис Уборевич-Боровский. — Мы восприняли его как приглашение к диалогу. Интерьер должен был стать органичным продолжением ландшафта за окном. Отсюда родилась концепция сдержанного, минималистичного пространства, где ничто не отвлекает от созерцания природы. При этом ключевым приоритетом оставалось создание безупречной планировки, обеспечивающей комфорт для всей семьи».

Прихожая. Панели из ткани, витрина на стене, двери, Rimadesio. Кресло, Maxalto. Напольное покрытие, Venezia Stone. Светильники, Flos.
Особого внимания требовала зона прихожей. Ее искусственное расширение в прошлом создало дисбаланс по отношению к гостиной. «Мы скорректировали пространство, визуально сократив протяженность прихожей и придав ей гармоничные пропорции», — дополняет Борис.

Холл. Кресло, Baxter. Журнальный столик Bidu, Flat Interiors. Картина Владимира Шинкарева «Холм джаникул», pop/off/art gallery.
Не менее важными аспектами стали продуманное освещение и подбор качественных материалов. Заказчики выразили явное предпочтение благородным, натуральным материалам: камню и древесине, стеклу в различных интерпретациях. Также их привлекали современные световые решения и актуальный дизайн. Совпадение вкусов и открытость заказчиков к идеям архитекторов сделали сотрудничество плодотворным и приятным для каждой из сторон.

Кухня, Valcucine. Бокалы, Sieger by Furstenberg, Nude Glass, Luigi Bormioli, «Дом Фарфора».

Вид на кухню и столовую. Барные стулья, Walter Knoll. На кухне — блюдо Paola C, PROpredmet.
«Мы предлагали смелые, современные решения, которые находили живой отклик. При этом неизменным вектором всегда оставалось создание продуманной планировки. Родительскую зону четко отделили от детской, так как со временем детские комнаты наполнятся энергичными играми и музыкой. Для детей наша команда разработала мебельные решения, изготовленные по индивидуальным чертежам. Они учитывают быстрый рост и меняющиеся потребности, а их дизайн адаптирован к взрослению», — рассказывает Борис.

Рабочий уголок в детской. Фигурка лошадки, интерьерный салон Altagamma. Стул BassamFellows, PROpredmet. Лампа &Tradition, GK Concept. На столе фигуры Анны Грачевой, Leto Ceramic.

Детская комната. Кровать, Pianca. Ковер, Kulturakovrov. Постельное белье и покрывало, Ateliertati. Мебель — индивидуальное изготовление. Стеклянные панели выполнены на заказ компанией «Борус». Над кроватью и на стене — работа Якова Хомича, Art&Brut gallery. На столе скульптуры Анны Грачевой, Leto Сeramic. Стул Muuto, L’Appartement.
В гостиной акцент смещен на зону семейного времяпрепровождения — место, где сходятся два панорамных фасада и открываются наиболее эффектный вид из окна. Зона столовой также ориентирована на впечатляющий витраж, обращенный к природному комплексу. «Мы убеждены, что самые волнующие моменты созерцания пейзажа происходят, когда вся семья собирается вместе за обеденным столом», — делится автор проекта. Кухня бренда Valcucine интегрирована в общее пространство гостиной с помощью изящных закрывающихся экранов, позволяющих в мгновение ока скрыть всё технологическое оснащение. Центральный остров с варочной панелью удобен для приготовления еды и общения с гостями лицом к лицу.

Столовая. Обеденная группа: стол B&B Italia, стулья Molteni. На обеденном столе — вазы Rehome Living Objects. Люстра, RAkumba.
В приватной зоне родительская спальня визуально объединена с гардеробной, что создает ощущение простора. Пространство завершает ванная комната, оборудованная душевой кабиной с функцией хаммама. Специальное стекло на фасадах гардеробной скрывает содержимое от прямого взгляда, сохраняя эстетику спальни.

Спальня хозяев. Основание кровати, прикроватная тумбочка, Pianca. Изголовье кровати — индивидуальное изготовление. Постельное белье, Ateliertati. Светильник, Davide Groppi. Ковер, Kulturakovrov. Картина Андрей Ковязин, Art&Brut gallery. Кувшин, стаканы Paola C, PROpredmet. Панели с тумбой на стене — индивидуальное изготовление.

Фрагмент гардеробной. Гардеробная, Rimadesio. Пуф, Maxalto. На столе — ваза Paola C, PROpredmet.
Перед спальней располагается небольшой кабинет-будуар, формируя приватную переходную зону между приватным блоком и остальной квартирой. Это многофункциональное пространство с диванчиком, рабочим столом и стеллажами для личных вещей семьи.

Кабинет. Стеллажи — индивидуальное изготовление. Стол, Maxalto. Рабочее кресло, Walter Knoll. Ковер, Kulturakovrov. Настольная лампа Moustache, GK Concept. На стеллаже — подсвечник и вазы, Keramizm.

Ванная комната. Сантехника, Gessi. Подстолье под раковину, зеркало выполнены на заказ. Люстра, RAkumba.
Современные материалы и обилие стекла преобладают в интерьере, обогащая световые сценарии и наполняя светом каждый уголок квартиры. «Для максимального комфорта управления пространством мы интегрировали систему «умный дом». Размещение ее многочисленных коммуникаций стало отдельной инженерной задачей, с которой мы успешно справились. Заказчики высоко оценили это решение, значительно упрощающее контроль над климатом, освещением и мультимедиа», — добавляет Борис. Апартаменты обрели идеальный баланс продуманных решений и уникального природного контекста.

Ванная комната. Ванна и подстолье, Antonio Lupi. Cтолик Normann Copenhagen, GK Concept.

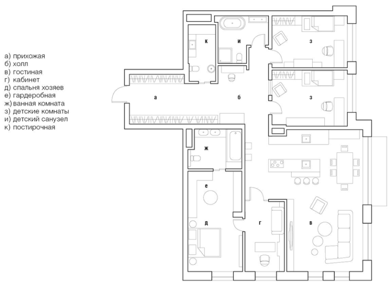
Планировка.