Анастасия Шевченко оформила квартиру в московском ЖК премиум-класса Knightsbridge в Хамовниках.
Площадь: 270 кв. м
Студия NASHE interiors специализируется на создании современных интерьеров вне времени, и новый проект — не исключение. Это элегантное комфортное пространство в сдержанных оттенках натуральной палитры гармонично сочетает элементы классики и современности и «звучит» очень деликатно, несмотря на то что авторское решение — эксклюзивное, материалы — премиальные, а мебель и свет представлены громкими, уважаемыми в дизайнерском сообществе именами.

Общий вид гостиной. Уютную атмосферу поддерживает текстильный декор: натуральные ткани в пастельных оттенках с выраженными фактурами подчеркивают общую стилистику и тональность интерьера. Диван, Minotti. Столики, Flou (Homeart).

Гостиная оформлена в сдержанной палитре натуральных оттенков. Золотистая латунь играет роль декоративного акцента. На стенах — классические молдинги, мебель — в современном стиле. Диван, Minotti. Столики, Flou (Homeart).
«Наш проект — спокойный, с чувством собственного достоинства и уверенный в своей неотразимости, — рассказывает Анастасия Шевченко. — Он под стать хозяевам — людям утонченным, увлекающимся искусством. На концепцию повлияло и то, что хозяйка работает в индустрии красоты. Мы старались создать интерьер, который был бы столь же интеллигентным и стильным».

Столовая, в проеме виден холл. Обеденный стол, Lago. Обеденные кресла, Poliform. Подвесная люстра, Vistosi (Homeart).

Кухня. Корпусная мебель выполнена по эскизам студии. Светильники подвесные Grok, барные стулья Aster (Homeart). Крупноформатный керамогранит Xlight, Urbatek. Чаша, Audo Copenhagen. Смесители кухонный и для питьевой воды, дозатор — всё Dornbraсht.
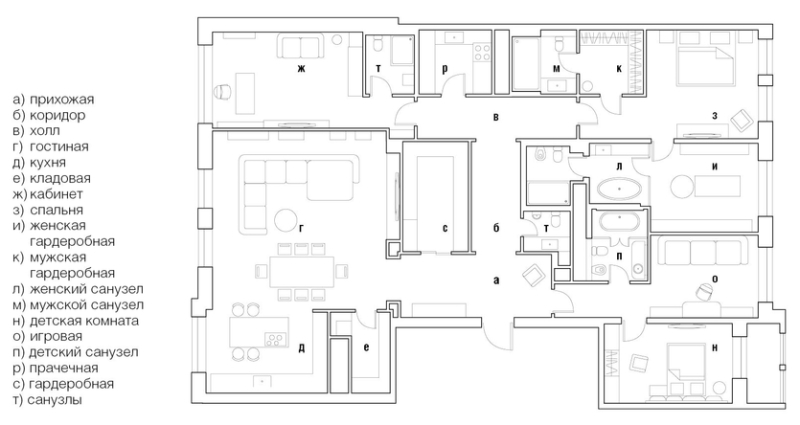
Планировка квартиры общей площадью 270 кв. м учитывает все потребности семьи с ребенком: в левой части квартиры организовано открытое пространство гостиной и кухни-столовой, где хозяева могут проводить время с семьей, друзьями, организовывать приемы; в правой — блоки приватных «детских» и «взрослых» помещений со своими ванными комнатами и гардеробными. Чтобы можно было с комфортом работать из дома, дизайнер спроектировала кабинет (он располагается за гостиной в левой части квартиры в комнате с эффектным полукруглым окном).

Вид от входа на коридор, ведущий в ту часть квартиры, где располагаются кабинет (слева) и спальня (справа). За стеной, на которой укреплено панно, — постирочная.

Холл. Над консолью — картина, автор Мария Будущих. Консоль, Oasis Home, настенный светильник, Luxxu (Homeart). Керамические шары, автор Ксения Калаида.
Рядом с детской спальней обустроили еще одну комнату для дочки. «Как мама троих детей, я всегда стараюсь максимально продумать детские, — признается дизайнер. — Комфорт, безопасность и веселье — вот главные пункты, которые учитываю при проектировании. Здесь в детском блоке изначально планировали две комнаты: спальню с рабочим местом и игровую, где сначала хотели сделать домик-чердак с гамаком, но потом поняли, что пока будет идти стройка, ребенок уже подрастет, и домик станет неактуальным. Тогда мы переосмыслили зону игровой: теперь это комната с рабочим местом и диваном, где дочка может делать уроки, отдыхать, принимать гостей».

Спальня дочери оформлена так же сдержанно, как и «взрослые» помещения, и при этом в ней царит атмосфера особенной нежности: мягкая цветовая палитра, округлые формы мебели, подвесной светильник в виде стилизованных цветов. Кровать Stone, Baxter. Прикроватная тумба, Reflex Angelo. Светильник подвесной, Haberdashery (Homeart).

Эта комната была задумана как игровая, но реализована как детский кабинет с дополнительной функцией малой гостиной. Кресло на колесиках, B&B Italia. Диван B&B Italia в ткани Dedar. Люстра, Moooi (Homeart). Стеллажи и мебель для хранения, рабочее пространство изготовлены в собственной столярной лаборатории по проекту Анастасии Шевченко.
Но главное пространство — это открытая зона гостиной. В ней установили большой диван Minotti в обивке сложного зеленого оттенка. Такой цвет дивана был пожеланием заказчицы, и от него начала складываться цветовая схема интерьера: оттенки теплого белого, бежевого, серебристо-серого, а также натуральные цвета дерева, камня, латуни — золотистый оттенок латуни использован в интерьере в качестве акцентного. Обычно члены семьи завтракают вместе, поэтому для завтраков предусмотрели остров с барным столом. А для ужинов с друзьями, приемов и вечеринок установили большой обеденный стол Lago с латунным подстольем, с которым по форме перекликаются кофейные столики Flou и стулья Poliform.

Общий вид кабинета: великолепное арочное окно, паркет в раскладке «французская елочка», молдинги на стене и масштабный потолочный карниз формируют основу интерьера в духе классики, а современная мебель придает пространству актуальность. Диван, Milano Bedding (Homeart).

Кабинет. Рабочее кресло развернули лицом ко входу — такое положение для человека психологически комфортно. Стеллаж — по чертежам автора проекта. Письменный стол, Capital. Кресло, Thonet (Homeart). Слева от входа — гардеробная. Над диваном — картина, автор Ольга Шагина. Вся мебель в кабинете, в том числе панели, стеллажи, и гардеробная, а также столярные изделия в детской, изготовлены в собственной столярной лаборатории по индивидуальному проекту Анастасии Шевченко.
Корпусная мебель в гостиной, кухне и детской выполнена на заказ на столярном производстве по эскизам автора проекта. Здесь всё детально продумано для того, чтобы хозяевам было комфортно, а эстетика в этом пространстве — неотъемлемая часть комфорта.

Стены в спальне хозяев обшиты кожаными панелями в обрамлении латунными профилями. Объемное изголовье кровати поддерживает стиль современной классики. Зеркала бронзового оттенка, размещенные за изголовьем, делают пространство интереснее, меняют представление о его истинных размерах. Продуманные до мелочей световые сценарии поддерживают атмосферу расслабленного отдыха. «Чтобы добиться особенной визуальной «чистоты» пространства, еще на этапе строительства наши подрядчики встраивали розетки, выключатели, тач-панели «умного дома» так, чтобы после финишных работ они оказались в плоскости стены», — рассказывает автор проекта. Кресло Bon Ton, Capital. Комод, Stylish Club. Кровать, Rugiano. Прикроватная тумба, Giorgetti. Светильник, Lodes (Homeart).

Женская ванная комната декорирована в светлых тонах, это оазис спокойствия и нежности. Чистота линий, свойственная этому интерьеру в целом, здесь приобретает особый символизм. Керамогранит Minimal Cream, Unique Travertine всё — Provenza. Ванна, Inbani, встроенная полка, Antonio Lupi. Светильник, Terzani. Подвесной унитаз и биде, Cielo. Смесители, CEA design (Homeart).

Планировка.