Хозяин апартаментов в Москве обратился к дизайнеру Галине Даниловой с просьбой создать авторский современный интерьер в сжатые сроки — за три месяца.
Площадь: 85 кв. м
Хозяин уже отчаялся найти дизайнера, который сделал бы интерьер быстро и на высоком уровне. При этом еще не решил, будет ли он там жить сам, сдаст ли апартаменты в аренду или продаст, зато дал Галине Даниловой полную свободу, обозначив, что интерьер должен быть в современном стиле. «Интерьер я создавала по своим ощущениям и как для себя, — рассказывает дизайнер. — Ставила задачу сделать жилое пространство, в котором захочется остаться».

Гостиная. ТВ-панель укреплена на стене, отделанной текстильными и деревянными панелями. Панели и корпусная мебель, компания «Имлес». Диван, Minotti. Банкетка, Dantone Home. Журнальные столики, Luisa Molteni. Торшер, Loft Concept. Шторы, «Арт-Проект».

Фрагмент гостиной. Чтобы создать располагающую атмосферу и подчеркнуть ощущение безопасности, дизайнер обыграла в интерьере теплые оттенки и форму круга: круглый плафон торшера, овальные столики и декор; мягкая мебель — со скругленными углами. За панорамным окном — городской пейзаж. Предметы декора из металла создают в интерьере необходимый баланс «тепла» и «прохлады».

Вид из гостиной на коридор приватной части квартиры. Справа за стеклянными дверями — системы хранения, слева — спальни.
Квартира досталась от застройщика вместе с отделкой в современном стиле. Если пройти из холла налево, попадаешь в открытое пространство кухни-гостиной, а направо расположена приватная часть квартиры: две спальни, два санузла. И планировка, и базовая отделка оказались удачными — их было решено оставить. На лаконичную базу хорошо легли теплые природные оттенки темного и светлого камня, американского ореха и дуба, темного и золотого металла. Картину дополнили мягкая мебель в светлых обивках с приятными фактурами, натуральная кожа, пушистые ковры. Стены украсила графика — постеры с обложками Vogue, а журнальные столики и полки — минималистичные вазы и статуэтки. Впрочем, столики и стулья и сами выглядят как арт-объекты. «Выразительные детали интерьера, подчеркнутые видами из окон, — универсальная формула стиля контемпорари», — объясняет суть концепции Галина Данилова.

Кухня со шкафами двух видов — глубокого пепельного оттенка и натурального цвета шпона ореха — создает в общем пространстве кухни-гостиной особую атмосферу сдержанной элегантности. Этнические статуэтки, декор из латуни, фужеры Redecoro из янтарного стекла прибавляют пространству атмосферности. Шкафчики и панели в отделке шпоном оставляют впечатление художественно целостного пространства. Пол в этой зоне отделан керамогранитом, техника максимально спрятана. Духовой шкаф, СВЧ и посудомоечная машина, Bosch. Варочная панель с интегрированной вытяжкой, Elica Nikolatesla.

Круглый обеденный стол со стульями — часть открытого пространства кухни-гостиной. Остров служит столом для завтраков и барной стойкой. Стол Eliza, стулья Jody — всё iModern. Барные стулья, «Мебелион».

Прихожая. Шкаф с зеркальными дверями с бронзовым напылением и скрытыми латунными ручками органично вписался в пространство входной зоны.
Интересно, что обложки номеров Vogue 100‑летней давности появились здесь неслучайно. Ровно век назад, в 1925‑м году, в Париже состоялась международная выставка декоративного искусства и художественной промышленности, которая сформулировала принципы ар-деко, дала название стилю и сыграла ключевую роль в его дальнейшем развитии. Интерьер апартаментов — оммаж к архитектуре здания, спроектированного нью-йоркским бюро Rockwell Group именно в духе ар-деко. Дизайнер внесла в интерьер детали, которые отсылают к этому «большому стилю» 20‑х годов прошлого века: строгая геометрия деревянных панелей, полосатый шпон макасара в отделке стульев, «нью-йоркская» ритмика жалюзи, этнические фигурки животных, привезенные дизайнером из Иордании, и характерные постеры. Элементы ар-деко обогатили современный лаконичный стиль апартаментов, он приобрел буржуазный лоск, стал более чувственным.

Во второй спальне организовали кабинет. Здесь нет ничего лишнего, чтобы не мешать работе, но каждый штрих выразителен — от жалюзи до светильника-стеллажа. Рабочий стол, IModern. Диван, «Лавсит». Длинное узкое помещение кабинета автор проекта поделила на три зоны: рабочий стол с этажеркой-светильником, раскладной диван с журнальным столиком и функциональный угловой шкаф. Несмотря на небольшой размер комнаты, удалось сделать ее уютной, комфортной и функциональной.

Дизайн спальни так же, как и дизайн гостиной, использует округлые формы и мягкие фактуры, натуральные кожу и текстиль, но в спальне тема спокойствия и безмятежного отдыха выражена еще более очевидно. Текстильное оформление кровати с бархатным покрывалом добавляет в интерьер нотку роскоши. Кровать, Homester. Прикроватный столик, Molteni.

Слева коридор приватной зоны. В зеркальных дверях шкафа отражается спальня. Справа вид на спальню из ванной комнаты. «Дверь из спальни в ванную сначала открывалась внутрь, упираясь про этом в ванну, и это было очень неудобно, — вспоминает Галина Данилова. — Мы решили эту проблему, перевесив дверь так, чтобы она открывалась внутрь спальни. Теперь она свободно распахивается до стены, и ничто ничему не мешает». Прикроватный столик, DG-Home. Шторы, «Арт-Проект».

В ванной комнате исключительно элегантное сочетание керамогранита оттенка травертина с керамогранитом темного пепельного тона, с латунными рамами зеркал и темным металлом смесителей.
Работая с ар-деко, важно не переборщить со «значительностью»: массивными формами и темными цветами, тогда интерьер станет парадным, но лишится тепла. Здесь же очень уютно и комфортно благодаря светлым оттенкам, панелям из ткани и дерева, солнечным отблескам латуни, зеркалам с бронзовым напылением, прибавляющим света и воздуха. «Одной из моих задач была необходимость наполнения пространства большим количеством мест для хранения, в частности нужно было много шкафов, — рассказывает автор проекта. — При этом они не должны были быть визуально громоздкими, мне не хотелось перегружать интерьер. Ощущения визуальной легкости интерьера я добилась, используя зеркальные и стеклянные поверхности дверей. Зеркала словно растворяют объект в пространстве». И еще один момент: в общественных пространствах здания установлено стекло с теплым бронзовым напылением, и, чтобы создать еще один «узел связи» между интерьером и экстерьером, Галина Данилова использовала такое же стекло в своем проекте. Результат — элегантный и эмоциональный интерьер, в котором есть всё, чтобы стать любовью с первого взгляда.

Санузел оформлен в светлых тонах. Актуальный прием: пол и нижняя часть стены — керамогранит под терраццо, выше — краска. Овальное зеркало, круглая накладная раковина прибавляют помещению мягкости и уюта.

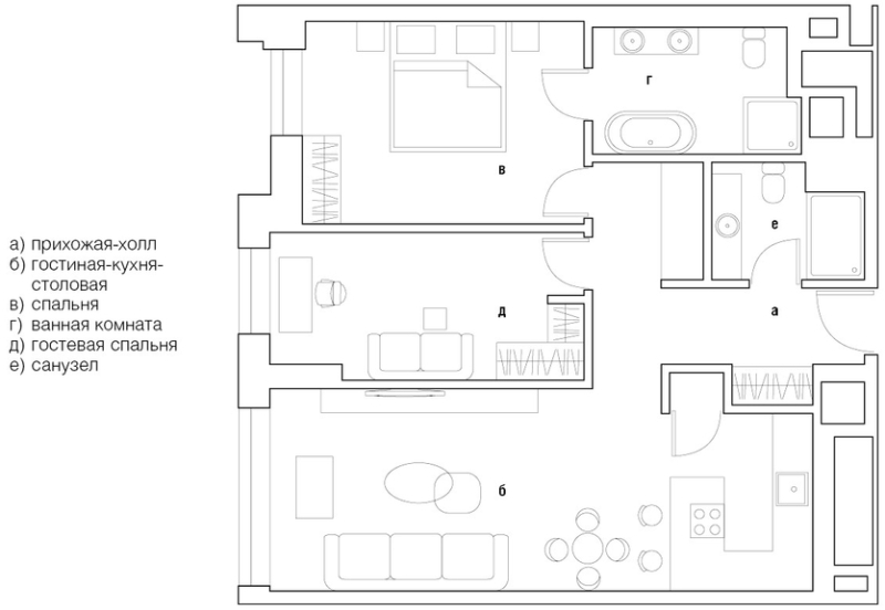
Планировка квартиры.