Ненавязчивая технологичность, много света и плавные линии: Екатерина Богачик и команда ее дизайн-студии создали «ресурсный» интерьер для девушки.
Площадь: 107 кв.м
Трехкомнатная квартира, которую было решено превратить в совершенно новое пространство, находится в Омске. В начале работ заказчица четко сформулировала свои пожелания, принимала активное участие в обсуждении дизайн-проекта, вникала со все детали, но от участия в процессе реализации отказалась, доверив всё дизайнерам во главе с Екатериной Богачик и увидев готовый результат только на этапе сдачи.

Хозяйка отказалась от трековых систем, поэтому авторы тщательно выбирали стационарные светильники, многие из которых задают настроение в разных уголках интерьера. В кухне-гостиной — это Aura от Italamp и бра Sputnik от Visionnaire. В потолок встроены гипсовые светильники Stellanova. Столик Button, диван Babylon Rac, Visionnaire. Ковер выполнен на заказ. Пледы, Masserano Cashmere.

Фрагмент гостиной. Кресло Egoiste, диван Babylon Rac, торшер Apple, всё — Visionnaire.

Раздвижная дверь HenryGlass с зеркальным эффектом сразу приковывает взгляд — это нестандартное завершение коридора, который отделяет приватную зону от гостиной и мягко акцентирует любимую скульптуру хозяйки. Рядом, в шпонированных панелях, разместили скрытую дверь в ванную комнату.
«Мы создаем личностно-ориентированные интерьеры, и поэтому для нас очень важно общение с заказчиком на этапе проектирования, — рассказывает руководитель проекта Екатерина Богачик. — Владелица мечтала о светлой квартире с огромной гардеробной, сауной и хаммамом, где можно отдохнуть и зарядиться энергией для развития в работе. Ее пожелания мы воплотили, создав настоящий оазис гедониста, — наша заказчица гениальна в своей профессии и может себе позволить быть у себя дома эгоисткой. Так как 2025-й — год скругленных линий, мы деликатно применили этот прием повсюду, начиная от стыка между керамогранитом и паркетом до мебели и заканчивая округлой деревянной стеной в спальне».

В основе этого «женского» интерьера — естественность и мягкость. Построенная на светлых оттенках и натуральных материалах кухня-гостиная выглядит элегантно и воздушно, но обладает логичной планировкой и функциональными деталями. Столики, диван, Visionnaire.

Чтобы обозначить границу кухни и гостиной, был выбран нестандартный диван Babylon Rack от Visionnaire, который выигрышно смотрится со всех сторон: в спинке и подлокотниках разместились открытые отсеки для книг со светодиодной подсветкой. Раздвижная дверь, HenryGlass.
Для создания новой планировки были демонтированы все существующие перегородки. С помощью зеркальной раздвижной двери гостиную с кухней отделили от приватной зоны, в которую вошли спальня, ванная комната и гардеробная. По замыслу Екатерины Богачик, при входе в приватную часть квартиры владелицу должна встречать ее любимая хрустальная статуэтка «Влюбленные» от Duccio di Segna: фигуру как бы обнимает скругленная реечная перегородка. Знаковый арт-объект подчеркнули посредством ниспадающего света, который особенно эффектно смотрится по вечерам.

Кухня Valcucine — воплощение комфорта: фасады открываются одним движением руки, предлагая на выбор всё необходимое от бокалов до блюд для льда. Колонны, остров с интегрированным столом, Aster Cucine. Винный холодильник, Liebherr. Техника, Kuppersbusch и SMEG. Посуда и декор, Degrenne, Broggi, Cristel. Хрустальный декор, Duccio di Segna.

«Мы деликатно скруглили углы там, где это возможно: это тренд текущего года, а в жизни и так много острых углов. У острова от Aster Cucine закруглений предусмотрено не было, но фабрика согласилась поработать с нами индивидуально», — объясняет замысел Екатерина Богачик. Стулья Sybilla, Visionnaire.
Так как кухня представляет собой часть гостиной, одна из ее функций — служить украшением квартиры. Поэтому здесь появились два красивых светильника Sputnik от Visionnaire. Интерактивной кухней можно управлять одним взмахом руки: включить и выключить подсветку, открыть фасады, выдвинуть смеситель. Чтобы понравившийся кухонный остров вписался в лишенный углов интерьер, Екатерина работала напрямую с фабрикой — в результате модель приобрела обтекаемые формы и интегрированную часть стола.

У входа в приватную зону находится своеобразное святилище дома. В полукруглой перегородке-нише «парит» на пьедестале важный для заказчицы арт-объект — хрустальная фигура влюбленных от бренда Duccio di Segna. Акцентный свет мягко растворяется в деревянных реечных панелях.

После кардинальной перепланировки удалось избежать тесной и темной прихожей — в квартире появилась открытая входная зона, куда поступает свет из гостиной. В уютной нише расположилась скамья, а рядом столик — оба предмета от Christine Kroenke.
Центр гостиной — диван, который должен был выглядеть эстетично со всех сторон. Екатерина остановилась на модели Babylon Rack от Visionnaire, а дополняет обстановку кресло Egoiste от того же бренда. Среди расслабляющего интерьера уместился мини-кабинет для работы, а рядом, у окна, находится шкаф для хранения документов.

Спальня. Кровать и тумбы Ultrasound, бра Akira, Visionnaire. Скамья Coco Panca, DV Home. Столик, Eichholtz. Подвесной светильник Regolo, Italamp.

Женственность, заложенная в основу интерьера, особенно ясно прочитывается в деталях спальни: по задумке, панели из дерева и МДФ напоминают женский корсет, а стену украсили две вешалки в виде пуговиц от Cattelan Italia. Скамья Coco Panca, DV Home.

У окна обустроен уютный мини-кабинет для работы. Стол Roma, Rugiano. Кресло Sybilla, Visionnaire. Шкаф для документов, Aster Cucine.

Под гардеробную выделили площадь в 25 кв. м. Поэтому получилась полноценная комната со своей точкой притяжения — «астрономическим» подвесным светильником Elara от Lodes. Комплект шкафов для одежды изготовила фабрика Dallagnese. Зеркало и пуф, Eichholtz.

Хозяйка полностью доверилась дизайнерам студии Екатерины Богачик и не посещала квартиру до окончания работ, но некоторые задачи обозначила сразу, в том числе пожелание иметь сауну и хаммам. Поэтому особое внимание уделено спа. Зеркало и тумба, Absolute. Душевая-сауна, Saunavita. Светильники, Lodes. Декор, Duccio di Segna, Decor Walther.
Обеспечить вожделенную атмосферу релакса помогли натуральные материалы — шпон дуба, кожа и мрамор. Еще одна находка — необычная интерпретация футуристических элементов. «В ходе разработки концепции проекта наша команда пришла к идее «космических» деталей: супертехнологичная кухня бренда Valcucine, светильники Lodes, напоминающие Сатурн и его кольца, обтекаемые формы предметов интерьера — каждая деталь отражает эту идею. Результаты работы превзошли все ожидания и сразу понравились заказчице», — отмечает Екатерина Богачик.

Гостевой санузел. Дуэт белого и золотого с их роскошной «королевской» атмосферой уравновешивается сдержанностью деталей и линий. Тумба с раковиной, зеркало Vitage, Mildue Edition. Душевое ограждение, Novellini. Аксессуары, Treemme.

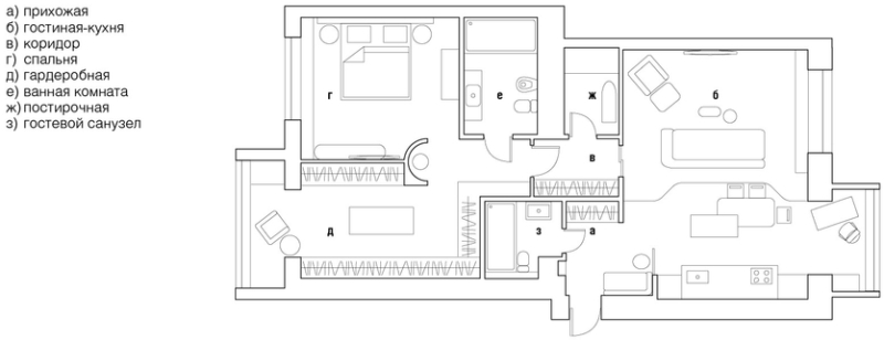
Планировка квартиры.