В интерьере этой московской квартиры ощущаются одновременно и легкость, и весомость. Они не конфликтуют, а помогают создать комфортное пространство для жизни и подчеркнуть высокий статус владельцев.
Площадь: 350 кв. м
Анастасия Резникова, основатель студии ANRE ARCHITECTS, создала этот интерьер для семьи с двумя детьми. Реализация авторских замыслов под ключ заняла два года, и результат впечатляет: получилось гармоничное пространство в духе современной классики. В нем есть простор и свобода, и при этом надежность, основательность, весомость. «Мы хотели создать интерьер вне времени, в котором каждый элемент, от масштабных архитектурных решений до мельчайших деталей, отражает утонченный вкус и статус его владельцев», — объясняет автор проекта Анастасия Резникова.

Гостиная в отделке цельными гипсовыми стеновыми панелями и мрамором смотрится респектабельно, при этом лаконично и сдержанно. За мраморной аркой с массивными распашными дверями — кухня. За открытым мраморным порталом — гостевая спальня и прачечная. Диван Camaleonda, B&B Italia, дизайнер Марио Беллини. Люстра, Bocci. Торшер, Panzeri.

Обеденная зона в пространстве гостиной. В контексте потолка с классическими элементами в оформлении и пола с укладкой «французская елочка» панорамные окна читаются как современный аналог французских окон в пол. Пол же сделан по старинной технологии: трехслойная структура из полнотелого высушенного дуба обеспечивает ему долговечность и возможность многократной реставрации, чего нельзя добиться при использовании современной клееной доски с тонким верхним слоем. Паркет, Bonum. Обеденный стол, Cassina. Кресла, Galotti&Radiche. Люстра, Bocci. Металлический стеллаж, Henge. Шезлонг в прихожей, B&B Italia, дизайнер Жан-Мари Массо.

Гостиная с ее мягкими формами и приятными фактурами располагает к отдыху. Портал камина выполнен в том же сорте мрамора, что и арочный портал, и перекликается с ним по форме. За арочным порталом с распашными дверями — главная спальня. Арочные двери изготовлены частной итальянской мастерской. Ручки на дверях литые, из «массива» латуни. Кресла, Gubi. Журнальный Milton стол из мрамора, Minotti. Кофейный столик, And Tradition. Полки из металла, Paolo Castelli. Ковер, Jan Kath. Люстра, Apparatus.
Проект объединил три квартиры, что позволило организовать анфиладную систему планировочных решений в духе дворцовой архитектуры ХIХ века — с арками и двойными дверями. Все двери в арках могут быть открыты, и тогда пространство гостевого коридора, гостиной и главной спальни становится единым и смотрится как большая галерея. Кухня находится на единой оси с гостиной-столовой; помещения разделены мраморным порталом с массивными дверями и врезными стеклянными секциями. Благодаря таким решениям интерьер приобретает динамику, смену впечатлений.

Вид из кухни на обеденную группу в гостиной. Оба помещения оформлены в едином стиле: стеновые панели в духе неоклассики, отлитые из гипса и окрашенные в один цвет, элегантная современная мебель и талантливые работы художников. Современное искусство, Anre Architects. Люстра и бра, Apparatus. Розетки и кейпады, Meljac. Акустика, James Loudspeaker. Потолочные светильники, Flos. Остров и одновременно столик для завтрака — из мрамора редкого сорта Calacatta Oro Gold. Кухня, L’Ottocento. Бытовая техника на кухне, Gaggenau. Барные стулья, Tom Dixon.

Сильный архитектурный прием — переосмысленная в современном духе аркада. Такой вид на гостиную и спальню открывается из коридора между кухней и прачечной. Этот коридор ведет в гостевую спальню.

Общий вид спальни. Чтобы большое помещение выглядело уютно, Анастасия Резникова создала здесь две основные зоны: сна и отдыха. Кровать, пуфы, Ivano Redaelli. Кресла, дизайнер Пьер Жаннере, Cassina. Диван, настольные лампы, GUBI. Журнальный стол с отделкой из натуральной кожи, Giobagnara. Потолочный светильник, Flos. Шторы сшиты Anre Architects из ткани Dedar. Картины, Anre Architects. На столе — подносы Giobagnara. Ковер, Jan Kath.
Продуманные световые сценарии — спокойный свет точечных торшеров, споты, ночная подсветка — поддерживают ощущение кинематографичности пространства. Весь свет интегрирован в систему «умный дом» (американская система Lutron). Стены декорированы гипсовыми стеновыми панелями, отлитыми специально для этого интерьера по чертежам автора проекта. В отличие от молдингов, которые выступают над поверхностью стены, вырезы, интегрированные в единую плоскость гипсовых панелей, выглядят необычно, придавая стене графичность, лаконизм (и вдобавок такие панели обеспечивают отличную шумоизоляцию). Сверху панели окрашены качественной американской краской натуральных оттенков — благородного серого, глубокого серо-зеленого, бежевого, нежно-голубого. Тепло, мягкость и уют интерьеру придают льняные обои.

Слева гостиная. В классическую композицию органично вписались лаконичная подвесная консоль и ТВ-панель. Освещение, климат-контроль, акустика и прочие инженерные решения во всей квартире интегрированы в систему «умный дом». Управление автоматизировано, но незаметно глазу, не нарушая визуального восприятия и эстетики интерьера. Система автоматизации, Lutron. Справа фрагмент спальни. Стол от Porada — многофункциональный: для чтения, для работы за ноутбуком, для макияжа. Освещение позволяет реализовать здесь самые разные сценарии. Стул, Poltrona Frau. Светильники, потолочный направленного света и интегрированный в пол, Apparatus. Встраиваемые светильники, Flos. Бра, Kelly Westler/Visual Comfort.

Решение ванной комнаты владельцев тонко сочетает классику и современность: ванна (Devon&Devon), зеркала, керамогранит (Inalco) с мраморными панелями в нижней части — это переосмысленный стиль ретро, такой актуальный сегодня. Раковины, Cielo. Смесители, CEA. Зеркала с подсветкой, Antonio Lupi. Люстра, Apparatus. Тумба, Neutra. Светильники, Axolight. Стеклянная перегородка — индивидуальное изготовление по авторским эскизам.

Комната дочери и ее будуар — блок помещений, оформленных в едином стиле. По сравнению с другими помещениями здесь больше мягкости. И в то же время привнесен элемент метамодернистской игры и эпатажа. С одной стороны, забавное пушистое кресло (Pierre Yovanovitch), напоминающее медвежонка, и фигурки зайчиков, с другой — дерзкая по характеру живопись Anre Architects. Кровать, письменный стол, стул, Porada. Шкафы (справа и слева от кровати) — частная итальянская мастерская. Ковер, Jan Kath. Кресло, лимитированная коллекция Olga Engel.
На контрасте со светлыми оттенками текстиля и окрашенными гипсовыми панелями впечатляюще выглядят откосы, покрытые латунными листами серьезной толщины — 8 мм. Темно-коричневый оттенок латуни — результат специального оксидирования без финального покрытия лаком, поэтому материал будет «жить», постепенно набирая густоту цвета. Красивая параллель латунным откосам — тяжелые металлические стеллажи фабрики Henge. Дополняют картину «настоящие», роскошные, полновесные мраморные порталы в отделке мрамором Calacatta Oro Gold, многослойная паркетная доска, созданная по старинной технологии, массивные двери, стекла и зеркала. При этом стекло с фацетом, преломляя свет, придает интерьеру легкость, живость и глубину.

Общий вид комнаты дочери. Оформленный в монохромной палитре, этот интерьер доказывает, насколько нескучной может быть такая комната, если подобрать оригинальные мебель, свет, арт. Диван и пара столиков с основаниями в бархатной обивке, Longhi. Люстра, Apparatus. Светильник-стеллаж, Atelier Areti. Кресла с ушками, Pierre Yovanovitch.

Спальня сына. Лаконичный и при этом выразительный дизайн каждого предмета формирует дружественную, эмоциональную атмосферу. Написанные специально для интерьера картины (Apparatus) акцентируют тему спокойствия, безопасности и безмятежного отдыха. Диван, пуф, Bonaldo. Напольный светильник, Davide Groppi.

Комната сына. «Интерьер должен вызывать эмоциональный отклик как у владельцев, так и у гостей, — говорит автор проекта. — Этот интерьер наполнен нюансами, способными пробуждать чувства и создавать особое настроение». Кровать, Living Divani. Люстра-вентилятор, CEA. Подвесной светильник у кровати, Flos, дизайнер Майкл Анастассиадес. Шкаф, Rimadesio.
Такая работа с материалами, формами, смыслами — оммаж искусству старых мастеров. Здесь прочитывается французская история, поданная полунамеками: теплый оттенок краски, похожий на «парижский серый», укладка паркета «французская елочка», окна в пол. Современное искусство привносит нотку богемного шика. На фоне неоклассических стен очень хороша современная дизайнерская мебель, среди которой есть иконы дизайна, например кресла по дизайну Пьера Жаннере. Гармоничное сочетание утонченной французской классики, простых и элегантных архитектурных решений, культовые предметы дизайна — это и есть искусство. Вот то главное, к чему вела эту интерьерную историю ее автор.

Холл. «Натуральные материалы, продуманные инженерные решения и уникальные декоративные приемы создают пространство, где время работает на красоту, — рассказывает Анастасия Резникова. — Это дом, который не просто служит владельцам, а ведет с ними диалог — о традициях, о технологичности и исключительности». Консольный столик, светильники, Apparatus. Шезлонг, B&B Italia.

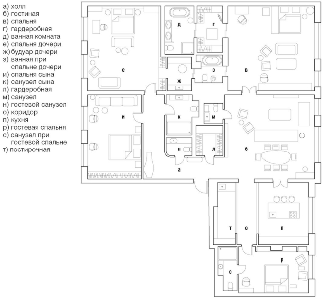
Планировка.