Новая работа ND Studio — интерьер подмосковного загородного дома. Это продуманное до мелочей пространство сочетает камерность, элегантность и артистизм.
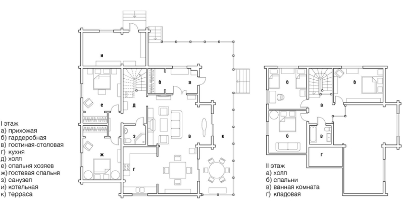
Площадь: 190 кв. м
Коттеджный поселок на Ярославском шоссе — приятное атмосферное место. Он находится в сосновом лесу, и все дома построены из дерева в едином стиле. И ландшафт выдержан в общей для всех соседей природной стилистике. Хозяева этого дома, супруги с тремя детьми, купили двухэтажный рубленый дом с удачной планировкой: «вторым светом» в зоне гостиной и столовой, уютной кухней в нише и с четырьмя спальнями (две наверху, две внизу). Но интерьер еще только предстояло сделать, и хозяева пригласили Марию Данелию, Олега Никитина и Марину Серебряную, чья стилистика им очень импонировала. Они попросили дизайнеров создать комфортное пространство дачи, где и ощущалась бы связь с прошлым, и присутствовала доля современной иронии.

Вид сверху на гостиную и столовую.

Двусветное пространство гостиной и столовой решено как открытое и перетекающее. Кожаные диван и кресла (Emile Marqu), деревянный пол в отделке маслом и воском, старинный восточный ковер, а также стулья в ковровой обивке (George Smith) и люстра из рогов оленя (Visual Comfort) создают атмосферу старой дачи. Картины, Анатолий Зверев.
Авторы предложили взять за основу стиль прованс, и хозяева, которые много путешествовали по Франции, с энтузиазмом приняли это предложение. По мысли дизайнеров, этот стиль в их авторской трактовке должен был связать воедино интерьер и экстерьер дома, а главное — создать умиротворяющую и при этом нескучную атмосферу дачи. Авторский прованс Марии Данелия и Олега Никитина выглядит небанально, артистично, тепло.
«Я понимаю прованс так, — объясняет Мария Данелия философию стиля, — это новая жизнь, которая дается старым вещам. Исторически французы предпочитали не расставаться с отслужившей свое мебелью, а отвозили ее в провинцию, в старый дом, там преображали, красили…Сложилась определенная система, и мебель французского прованса — очень часто это именно крашеная мебель. Действительно, проще всего привести в порядок старую мебель, просто ее покрасив. Но когда уже сформировался такой подход, такая концепция, она стала стилеобразующей, и в ее рамках дизайнер может создать что‑то, что само по себе приобретает новую ценность».

Вид на кухню от столовой. Раковина высечена из натурального камня. Мебель из дуба — французская, собранная из отдельных разнородных шкафчиков и полочек, окрашенная в цвет состаренного дерева. «В стиле прованс важна некая нерегулярность», — объясняет Мария Данелия. Картины, Игорь Майоров.

Важную роль в декоре кухни играет текстильное оформление: окно облечено в «раму» из хлопка с цветочным узором (Ralph Lauren), на полу из терракотовой плитки — небольшой восточный коврик.
Проводя экскурсию по дому, Мария показывает на спинку кровати в пастельно-бирюзовой гостевой спальне. Спинка не просто окрашена с эффектом старения: на ней роспись, которая создает рельеф на поверхности — и таким образом кровать становится предметом искусства в стиле прованс. Еще пример — подчеркнуто маленький балдахин в спальне хозяев как ироническое напоминание об эпохе, когда балдахины были функциональным предметом обстановки и защищали от сквозняков.

Спальня хозяев на первом этаже. Оттенки топленого молока и натурального дуба, шторы из шерсти и хлопок с нежным цветочным принтом создают атмосферу загородного дома, располагающую к отдыху. На стенах — работы Реваза Габриадзе, Виталия Стесина и Леонида Седова.

Гостевая спальня на втором этаже. На фоне стен пастельно-бирюзового оттенка очень хороша кровать с эффектом старения и ручной росписью спинки. «Балки — это декорация, — говорит Олег Никитин. — Раньше в подобных домах конструктив не прятали, и наша идея такова, что этот дом — старый, с историей».

Гостевая комната на втором этаже оформлена подчеркнуто ярко. «Всегда начинайте палитру с текстиля, — советует Мария Данелия, — и уже потом «доставайте» из него цвета для стен, мебели, аксессуаров». Здесь основные цвета — в орнаменте покрывала из ткани Pierre Frey. Пастель, Николай Данелия.
Или: в гостевой комнате на втором этаже внушительная по размеру скульптура петуха, сваренная из металлических листов. Похожие вещи ремесленного изготовления дизайнеры видели на рынках выходного дня во Франции, но в итоге купили скульптуру Andrew Martin в Москве, в шоуруме De Luxe Home Creation. Там же приобрели скульптуру лошади: она собрана из кусочков дерева, укрепленных на металлическом каркасе. «Такое дерево находят на берегу моря, — рассказывает Олег Никитин. — У этого материала замечательная природная энергетика». Особое место в интерьере принадлежит искусству: это графика режиссера Георгия Данелия, Николая Данелия, Реваза Габриадзе, живопись Анатолия Зверева, Игоря Майорова, Виталия Стесина и Леонида Седова. Арт, необычные предметы, игра с масштабами, богатая цветовая палитра — всё это составные части уникального авторского кода.

Петух, скульптура ремесленного производства, украшает гостевую спальню второго этажа. Это и символ деревенской жизни, и талисман дома. Работая с крупными формами, дизайнеры навели красоту и в «мелочах»: поработали даже с цветом и размером книжных корешков и полосок на коврике.

В комнате девочек организованы два уютных спальных места под пологами: на скошенном потолке установили по две штанги и перекинули через них ткань (Etro). Угол наклона потолка во время ремонта уменьшили, чтобы добавить объема и воздуха помещению. Стены декорировали краской пудрово-розового оттенка. Картины, Георгий Данелия.

Фрагмент ванной комнаты. Массивная раковина сделана вручную из песчаника.

Планировка.