«Арт и дизайн галерея Mobillissimi» воплотила шепот волн и теплоту песка в интерьере Royal Atlantis, соединив европейский минимализм с сокровищами прибрежных лагун.
Площадь: 440 кв. м
На 13-м этаже знакового комплекса Royal Atlantis на Пальме Джумейра дизайнеры «Арт и дизайн галереи Mobillissimi» создали интерьер для семейного отдыха. Здесь средиземноморская легкость встречается с приморской эстетикой, сдержанным европейским минимализмом и статусностью одного из самых роскошных проектов, созданных в Дубае. Заказчики — постоянные клиенты студии — пожелали отразить в интерьере дух курортного отдыха: лаконичные линии, природные оттенки бирюзы, песка и морской пены.

В этом проекте терраса стала смысловым центром, воплотив идею отдыха на стыке природы и изысканного дизайна. Диваны и кресла Living Divani из натурального тика текстиля цвета глубокого аквамарина — он перекликается с бирюзовыми водами Персидского залива.

В гостиной зеркальные панели Rugiano визуально расширяют пространство, а скульптурный мраморный столик Poltrona Frau перекликается с фактурным стеллажом Baxter.
Интересные фактуры, но без избытка декора, который характерен для восточных интерьеров. «Даже итальянские бренды, которые обычно имеют визуально спокойную эстетику, для арабских стран создают более броские, эффектные модели. И наша задача была сохранить элегантную сдержанность. Это не первая квартира, над которой мы работаем совместно с заказчиками и понимаем их с полуслова. К тому же наши вкусы абсолютно совпадают», — рассказывают авторы проекта.

Столовая-кухня. Люстра United Alabaster изящно украсила столовую зону. Пространство дополнено графикой Александра Чубарова — начало будущей арт-коллекции владельцев. Обеденный стол из мрамора, Agape Casa. Обеденные стулья, Rugiano.

Кухня. Барные стулья, Poltrona Frau.
Главная особенность региона — это климатические условия, которые требуют соответствующего подхода. Каждое время года диктует свои правила: летом палящее солнце вынуждает использовать много солнцезащитных конструкций, а зимой сильные ветра способны опрокинуть легкую мебель. Также для приморской зоны характерна высокая влажность, и это необходимо учитывать при подборе материалов. Они должны быть влагостойкими, способными выдерживать конденсат. Удачное расположение квартиры на теневой стороне позволило отказаться от тяжелых солнцезащитных систем и обыграть холодную серо-голубую гамму, подчеркнутую мягким рассеянным светом. Палитра вдохновлена прибрежным ландшафтом: мраморный стол-монолит, алебастровые светильники, бронзовые акценты и кожаная отделка создают эффект «тихой роскоши».

Холл. Весь интерьер насыщен деталями из бронзы и камня, что поддерживает его статусность. Пуф, Baxter.

Пространство главной спальни выполнено в оттенках зеленого, где каждый предмет мебели — метафора морского пейзажа. Панно Foss напоминает растения, растущие на побережье. Столик Rugiano из натурального змеевика отсылает к морским волнам. Текстиль Mastro Raphael и лампы Sigma L2 дополняют палитру оттенками серебристого, заполняя помещение прохладой и свежестью водной стихии. Кровать, банкетка, письменный стол икресло выполнены мастерами фабрики Oasis. Тумбочки и пуф, Baxter.
«Самым сложным этапом стала доставка и установка массивных каменных светильников и мебели, но даже эти задачи удалось успешно реализовать, — дополняют дизайнеры. — Проект продуман до мельчайших деталей: от постельного белья и халатов до посуды и полотенец. Детали дополнили образ — стеллаж в гостиной украсили вазы с элементами декора, будто собранного на побережье: кораллы, диковинные ракушки и камни — всё из сокровищницы морских лагун. А начатая владельцами коллекция графики добавила персонализма: работа Александра Чубарова в столовой и абстракции Андрея Верещагина в гостиной стали связующим звеном между интерьером и личностью хозяев».

Слева детская, комната выполнена в перламутровых оттенках, будто ракушки, разбросанные по берегу, превратились в переливающиеся стеновые панели, кровати и тумбы. А округлые мраморные столешницы Callacata Oro напоминают отполированные волнами камушки. Лампы, Rugiano. Справа фрагмент спальни.

Пространство ванной воплощает идею чистоты. Стены и пол ванной комнаты выложены мрамором с серыми прожилками.
«Запросы клиентов эволюционировали. Если раньше в приоритете была демонстративная роскошь и эксклюзивный дизайн, то сегодня ценится комфорт. Эргономикой больше не жертвуют ради эстетической составляющей. В первую очередь заказчики обращают внимание на удобство. Например, обязательно должна быть предусмотрена зона отдыха для семьи и гостей, а дорогой сердцу диван теперь не просто арт-объект, а место для чтения рядом со стеллажом с любимыми книгами. Сегодня заказчики всё чаще выбирают не «парадный» дизайн, а среду, где эстетика служит комфорту — как этот пентхаус, где каждая деталь напоминает о шепоте волн и свободе курортного отдыха», — размышляют авторы проекта.

Вид на бассейн. Бассейн со стеклянными бортиками визуально сливается с морской гладью, словно водная стихия продолжается до самого горизонта. Стена вдоль бассейна обладает причудливым рельефом, который напоминает раковины на прибрежных утесах.

Терраса. Уличная столовая группа, выполненная в разных оттенках эмали и дымчатого стекла, Baxter.

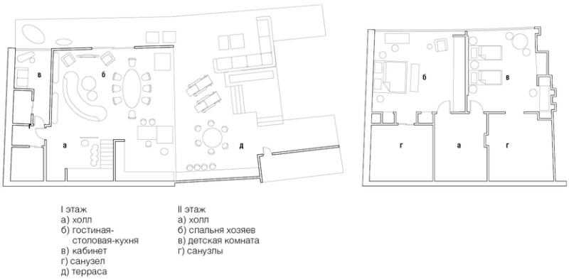
Планировка.