Интерьер квартиры на юго-западе Москвы его авторы из студии архитектуры ub.design создавали с учетом захватывающего панорамного вида на город.
Площадь: 120 кв. м
«Фактически это пентхаус на 25‑м этаже, с высокими потолками и окнами в пол. Именно эта открытость городу легла в основу нашей работы над проектом», — рассказывает руководитель проекта Борис Уборевич-Боровский. Другим важным фактором было соответствие интерьера стилю самого хозяина — молодого человека, студента, который стоит в начале своей самостоятельной жизни. Поэтому квартира должна была превратиться в удобную площадку не только для отдыха и учебы, но также для встречи гостей и общения с друзьями. «Значит, главным и самым важным пространством здесь становится гостиная, которую мы соединили с зоной столовой и кухней», — поясняет Борис.

Лаконичное и легкое пространство гостиной сливается с пейзажем, который открывается из панорамных окон. Они в свою очередь оформлены очень плотными шторами, которые решают вопрос акустического и светового комфорта, критически важного в помещениях с масштабным остеклением. Диван, Mononova. Ковер, Dоvlet House. Кресло, Poliform. На журнальном столике — подсвечники Ferm Living, GK Concept. Встроенный свет, Центрсвет.

Ярким акцентом интерьера гостиной стала картина Константина Zmogk Данилова, Reloft Art Gallery. Диван, Mononova. Ковер, Dоvlet House. Кресло, Poliform («ТРИО интерьер»). Табурет, Modenature. На консоли — подсвечники от Елены Ореховой (Savour). На стеллаже — ваза Polspotten («ТРИО интерьер»).

Рабочая зона и столешница кухни выполнены из камня Bellini от Quantra Quartz (Индия). Стулья MDF Italia, Interior Market. Чаша 101 Copenhagen, кувшин и стаканы Serax, GK Concept.
Гостиную буквально опоясывают большие панорамные окна, впускающие в интерьер динамичное настроение большого города. Мебель же здесь подобрана максимально удобная и комфортная для встречи больших компаний. Зону отдыха формируют широкие и низкие диваны Mononova, а также прочный и эргономичный журнальный столик. «В подборе мебели и аксессуаров мы были нацелены на предметы, которые помогали создать эргономичное пространство, где одинаково удобно и смотреть кино большой компанией, и общаться, и танцевать», — говорит Борис.

Вид из гостиной на зону столовой. Металлические спинки стульев вторят геометричной металлической ограде французского балкона.

Слева. Вид из спальни на коридор, ведущий в прихожую. Справа кабинет. Стеллажи для рабочей зоны в кабинете созданы по индивидуальному заказу компанией «Альмадера» и украшены вазами Софии Карнукаевой. Настольная лампа Oluce, «ТРИО интерьер». Кресло, Baxter.
Современный и во многом брутальный характер интерьера не лишил его домашних и уютных черт. Благодаря смелому соединению натуральных отделочных материалов и минимализма авторам проекта удалось достичь необходимого баланса. В высокие потолки вмонтировали технический свет, а для гостиной и зоны кухни подобраны лаконичные светильники. Полы же в единой общественной зоне обшили натуральным паркетом светлых тонов с практически классическим узором «елочка». Ноту классики в современный интерьер добавляет и стена в гостиной, выполненная из деревянных панелей с каннелюрами.
Домашнее тепло и динамичность соединил в себе масштабный ковер Dovlet House с архитектурным геометричным рисунком. Его мягкость выгодно контрастирует с металлом стульев и кухонными фасадами, чья холодная матовая поверхность оттеняет настенные панели из темного натурального дерева. «Таким образом интерьер проявляет свой брутальный, мужской характер, но при этом сохраняет необходимый любому жилому пространству уют и комфорт», — объясняет Борис Уборевич-Боровский.

Для зоны отдыха в кабинете подобрали диван Mononova (Interior Market) и акцентную работу Константина Zmock Данилова. Декоративные подушки, Ateliertati. «Кабинет сохраняет единую для всего интерьера монохромную гамму, при этом в будущем может быть переоборудован в функциональную детскую комнату», — отмечает Борис.

Выразительность интерьеру спальни придают знаковые дизайнерские предметы. Например, кресло «Василий» по дизайну Марселя Брейера (Beke Gallery) и акцентная работа от Janna Manska, Riva Gallery. Постельное белье и покрывало, Ateliertati.
Аналогичный прием применили в интерьере спальни и всей приватной зоны. Часть стен хозяйской спальни декорирована панелями из темного тонированного дуба, полы при этом обшиты светлым паркетом. Еще один уровень контрастности заложен в сочетании общей монохромной гаммы и ярких акцентов в виде живописных картин. Работы Константина Zmogk Данилова появляются и в зоне гостиной, и в рабочем кабинете.

Для спальни подобраны прикроватные тумбочки Flou, торшер Flos и настольные лампы Aromos del Campo, «ТРИО интерьер». Табурет, вазы (на стеллаже), Modenature.

«Для ванной комнаты ключевой стала идея контраста черного и белого. Зеркало Burglass в пол разделяет белоснежную зону ванной от брутальной зоны умывания, декорированной черной плиткой», — объясняет прием Алена Таева. Усиливает контраст темный керамогранит на полу, а также черные элементы. Отдельно стоящая ванна, Salini. Табурет, Modenature.
В приватной же зоне цветовые акценты уступают место знаковым предметам мебельного дизайна. Настоящим украшением спальни и самостоятельным арт-объектом стало коллекционное кресло в честь Василия Кандинского (модель «Василий») от Марселя Брайера в стиле конструктивизма. Таким образом несколько уровней контраста — цветовой, фактурный и стилистический — сформировали динамичный и одновременной брутальный интерьер для современного молодого человека.

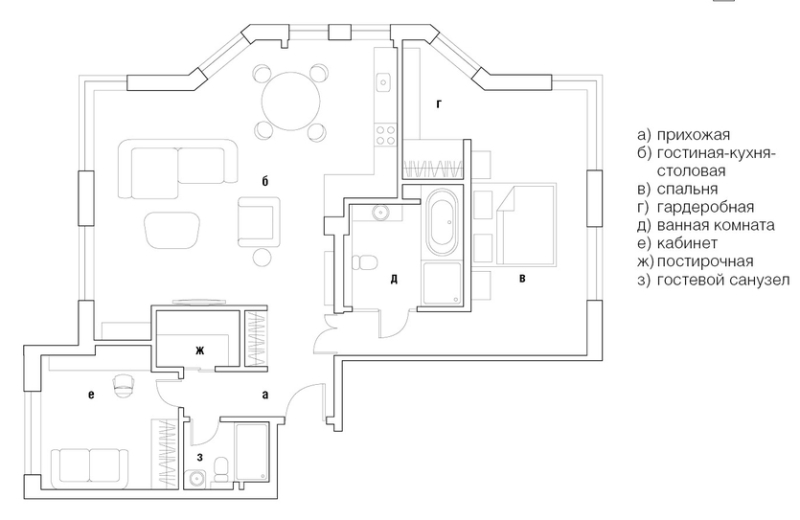
Планировка.