Дизайнер Лилия Бугрова создала функциональный, подчеркнуто мужской интерьер, который стал для владельца местом отдыха, уютным пространством для жизни и приема гостей.
Площадь: 75 кв. м
Проект разрабатывался с учетом потребностей современного мужчины, который искал свою идеальную квартиру в стиле «выходного дня» — его дети уже взрослые и живут отдельно. Владелец мечтал о пространстве, напоминающем уютную «берлогу», наполненную природными акцентами.

Автор проекта дизайнер Лилия Бугрова.
«Эта квартира, расположенная в ЖК «Черная Речка» в Санкт-Петербурге, больше напоминает любимую дачу — владелец значительное время живет за границей, дети приезжают нечасто, — говорит автор проекта Лилия Бугрова. — Поэтому ее предназначение — «личный номер в апарт-отеле», уютное пространство для отдыха и встреч с друзьями, отражающее индивидуальность заказчика, и настоящая «мужская берлога».

Зона гостиной. «Пол в основной зоне квартиры изначально хотели выполнить не в типовом варианте, — объясняет прием дизайнер. — Долго искали материал, который будет тактильно мягким, но при этом имеет свою собственную неповторимую фактуру. Выбор пал на вариант из микробетона от Ray Art. Стены отделали микроцементом, в сочетании с бетонным потолком получилась идеальная основа для предметов обстановки — дивана в оливковом цвете и журнальных столиков из меди со столешницей из камня». Стена за телевизором выполнена в графитовой декоративной штукатурке глубокого темного цвета, чтобы визуально скрыть сам телевизор. Потолок в зоне гостиной — двухуровневый. По центру оставили бетонную плиту. Во втором уровне спрятали все необходимые коммуникации, акустику, трековое освещение. Диван, OckHome в ткани от Efendi Dora.
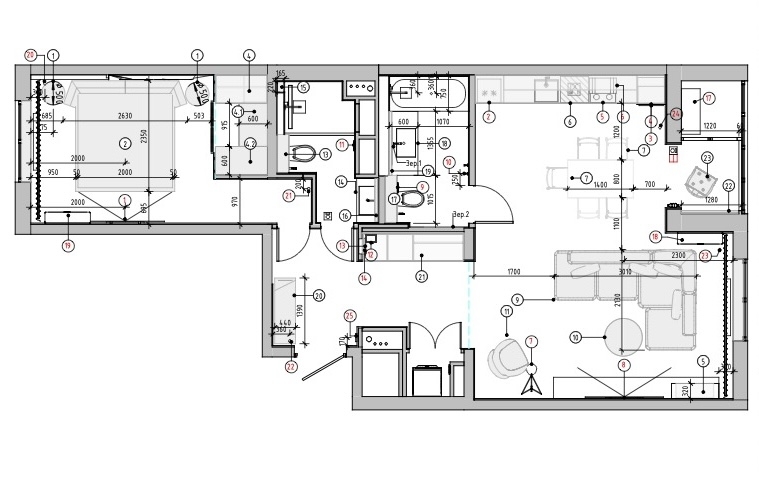
Исходная типовая планировка состояла из маленьких помещений и совершенно не отвечала потребностям владельца. Так, например, при входе располагалась узкая уборная, а гардероб, не обладая необходимой площадью, практически не выполнял своих функций. Кухня представляла собой небольшое помещение, в котором не хватало места для размещения всего необходимого инвентаря и техники. Дизайнер оптимизировала пространственную структуру, чтобы она стала более функциональной и эргономичной.

Откосы окон выполнены в шпоне дуба, подоконники — из слэба натурального ореха от Element décor. Столики, украшающие гостиную зону, изготовлены из натуральной меди и шпона. На диване разместили декоративные подушки, чехлы которых выполнены со вставками из натуральной кожи, перекликающимися со шкурой быка, которая идеально вписалась на полу у камина. Картина, Анастасия Коробка.
Прихожую и лоджию объединили с гостиной-кухней, за счет чего квартира стала восприниматься более светлой и открытой. Так как владелец любит принимать гостей, дизайнер предусмотрела большой раскладывающийся стол и удобную кухню. Создала полноценную спальню, в которой нашлось место и для гардероба, и для большой кровати, и для уютной ТВ-зоны. А также обустроила два раздельных санузла и небольшую постирочную.

Благодаря присоединению лоджии количество естественного света на кухне значительно увеличилось. На лоджии появилось место для размещения блоков кондиционера и системы приточной вентиляции, а также система хранения. Помимо технического оборудования, здесь установили кронштейны для складных стульев и стремянки. Все это скрыто за эффектными зеркальными дверями, позволяющими сохранить аккуратность и порядок. «Присоединение лоджии потребовало дополнительных конструктивных изменений, но в конечном итоге это позволило создать приятное место для отдыха, где можно наслаждаться утренним кофе или читать книгу в течение дня», — отмечает автор проекта. Картину специально для интерьера написала художник Анастасия Коробка.
«Одним из ключевых моментов стала реконструкция ванной комнаты: мы переместили её, что позволило освободить пространство в прихожей и сделать холл частью основной зоны, объединяющей кухню и гостиную, — объясняет Лилия. — Этот прием значительно увеличил масштаб использования пространства, а наличие окна обеспечило естественное освещение не только основной зоны, но и холла. После перемещения ванной комнаты у нас осталась ниша, которую мы использовали для организации постирочного блока. Мы скрыли его за стильными шпонированными мебельными дверями, что обеспечивает не только эстетичный вид, но и удобный доступ к необходимым бытовым принадлежностям».

В ванной комнате разместили зеркало для визуального расширения пространства. Зеркало обрамлено слэбами из натурального ореха под маслом, выполненными компаний OckHome. Дверь, компания «Сотос-М».

Стены в ванной комнате облицованы крупноформатным керамогранитом. На потолке — микроцемент и рейки из натурального дуба, между которыми встроены светильники. Мебель выполнена из шпона американского ореха компаний OckHome. За зеркалом — панно из натурального ягеля, мха и искусственного озеленения. Раковина выполнена из искусственного камня. Ванна, Villeroy&Boch. Смеситель, Cisal Less.
«В целом, проект перепланировки осуществлён с акцентом на функциональность, эстетическую привлекательность и создание комфортабельной атмосферы. Нам удалось объединить зоны, сделать их удобными для повседневной жизни и создать пространство, в котором заказчик будет чувствовать себя особенно комфортно и уютно», — добавляет дизайнер.

В зоне ТВ стены отделаны декоративной штукатуркой (Ray Art) с фактурой под песок. Биокамин обшит широкоформатным керамогранитом и панелями из жидкой меди.
Высота потолков и объем не позволяли реализовать полноценный лофтовый концепт, поэтому изначально заявленная идея трансформировалась в гибкий микс, в котором гармонично сочетаются элементы эко и современного стиля. Двухуровневый потолок добавил гостиной лофтовой эстетики, которая притягивает внимание своей индустриальной изюминкой. Бетонный потолок, оставленный от застройщика, стены, отделанные микроцементом, стали отличной основой для остальных элементов дизайна. Использование натуральных материалов, таких как панели из ореха, слэбы камня, паркет из древесины американского ореха, подчеркнули связь интерьера с природой, сделали пространство более теплым и тактильно приятным.

Столовая. Обеденный стол, стулья, Tohma. Подвесной светильник разработан по индивидуальному проекту компанией DC-Electro. Трековая система, Arlight.
Цветовая палитра «перетекает» из одного помещения в другое, создавая ощущение единства и целостности. Яркие нотки в общую гамму привносят акцентные цвета и детали — кровать цвета горчицы, оливковый диван и панно из натурального зелёного мха в сочетании с медными панелями подчеркивают богатство фактуры натурального ореха, бетонных стен и металла. «Эти элементы не только оживляют интерьер, но и создают атмосферу уюта и тепла в каждом уголке квартиры», — поясняет дизайнер.

Композиция из мха на лоджии разбавляет интерьер, придавая ему природное настроение.

«В этой квартире, спроектированной для проживания одного-двух человек, мы осознанно подошли к вопросу организации пространства, уделив особое внимание хранению, хотя и не стремились заполнять каждый уголок шкафами, — рассказывает о решении Лилия. — Очень важно было оптимизировать пространство — оставить только нужные вещи. Так, в прихожей установили вместительные шкафы, а также аккуратно скрыли постирочную зону, где находятся стиральная и сушильная машины, вынесенные подальше от спальни, чтобы минимизировать шум».
Выделяет проект интеграция системы «умный дом». В ванной комнате при включении света звучит пение птиц, создающее атмосферу спокойствия. Для ночной подсветки использована RGBW светодиодная лента в красном цвете, которая позволяет сохранить уровень мелатонина в организме. «Весь световой дизайн основывается на сценариях повседневной жизни заказчика, что делает интерьер еще более уютным и функциональным», — отмечает Лилия.

Кухня. Фасады мебели выполнены из шпона американского ореха под черной матовой эмалью, рабочая столешница и фартук — из натурального кварца Avant Quartz. В шкафах внизу располагаются секции для хранения посуды и продуктов, в верхних, помимо секций для хранения кухонной утвари, скрыто оборудование приточной системы вентиляции. «Умелое использование каждого метра создает не только функциональное, но и эстетически привлекательное пространство», — замечает Лилия Бугрова. Для освещения использованы накладные светильники с ретрокабелем. Дверь, компания «Сотос-М».
«Каждый элемент в интерьере выбран с особым вниманием, чтобы не только соответствовать высоким стандартам эстетики, но и обеспечивать тактильный комфорт, — комментирует замысел дизайнер. — Например, паркет в спальне выполнен из американского ореха, а черные металлические тумбы, дублирующие текстуру дверей гардеробной, имеют столешницы из того же материала, что и пол. Такой подход к выбору материалов создает непрерывный поток визуальных элементов. Медная стена за кроватью находит свое отражение в гостиной над камином, что усиливает связь между разными зонами квартиры. Диван обит антивандальной тканью микрошенилл природного оттенка, который элегантно перекликается с настенным мхом в ванных комнатах и на лоджии. Все цвета и фактуры словно заимствованы из природы — это создает атмосферу близости к окружающему миру. Даже оттенок кровати выбран в тон, ближе к цветам глины и песка, придавая интерьеру естественность и уют».

Цветовая палитра спальни состоит из приглушенных, темных тонов, создающих уютную камерную атмосферу. Акцентами выступают природные оттенки меди и глины. Дополнительной выразительности добавляет художественное панно-скала в сочетании с панелью из жидкой меди. Особый шик вносит паркет, выполненный из древесины американского ореха. Кровать шириной два метра оборудована дополнительной системой хранения, которая благодаря подъёмному механизму позволяет разместить более тридцати органайзеров с одеждой.
Интерьер, несмотря на свою насыщенность по приемам, решили не перегружать декором. Дизайнер выбрала базовые предметы, подчеркивающие дух пространства. Так, над столом и в зоне лоджии появились светильники с лампочками Эдисона — достаточно популярный прием, смотрящийся особенно органично в сочетании с бетонными стенами, лофтовым потолком и ретропроводкой. Нетипичная форма столиков в гостиной со столешницами из меди и шпона, глиняные вазы с сухостоями и ветвями, натуральная шкура на полу напоминают об экомотивах — ведущей декоративной теме интерьера.

Потолок в спальне, как и стены, выполнены из микроцемента, что позволяет визуально размыть границы помещения. А люстра из гибкого неона словно бы парит на фоне потолка. Специально для интерьера художник Анастасия Коробка написала картину. Столешница прикроватных тумб (Redout) изготовлена из того же материала, что и напольное покрытие от Coswick — американского ореха. Ваза из глины выполнена мастером на заказ, как и портьеры от студии Api. Их подобрали под цвет стен, что позволило добиться максимального гармоничного перехода от стен к окну. При спальне оборудована просторная гардеробная с дверями от Decus из алюминиевых реек и тонированного стекла.
«Преимущества эколофта заключаются в его способности быть одновременно современным и уютным, — размышляет о концепции Лилия. — Он идеально подходит для создания пространств, которые выглядят стильно и непринужденно. Использование экологически чистых материалов и акцент на природные элементы подчеркивает заботу о здоровье жителей и защите окружающей среды. Кроме того, такой интерьер позволяет легко адаптировать пространство под различные нужды».

Санузел. Душевая зона визуально выделена широкоформатным керамогранитом под металл. Лейка душа интегрирована в потолок для создания эффекта настоящего тропического душа или дождя.
Благодаря продуманной планировке, эффектному и брутальному дизайну квартира стала не только местом проживания, но и отражением личного стиля её владельца, местом, где он может расслабиться и наслаждаться жизнью.

Планировка.