Дизайнер Алена Клюева создала для известного московского флориста и ее семьи колоритный интерьер, душой которого стали живые цветы.
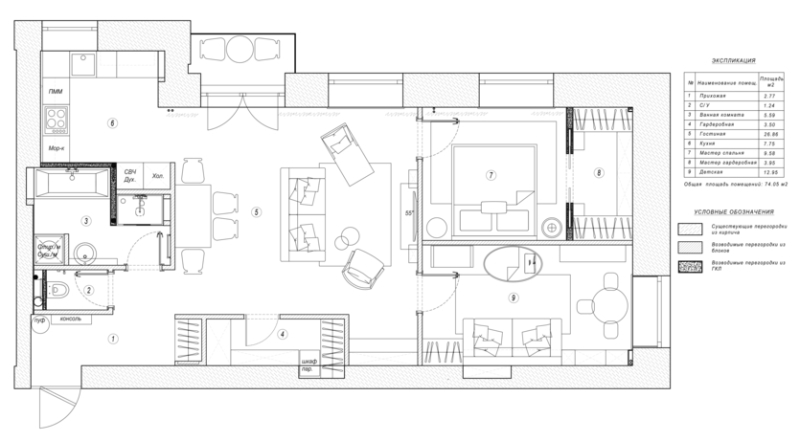
Площадь: 74 кв. м
Заказчики — молодая семья с маленьким ребенком. Хозяйка — известный в кругах дизайнеров и декораторов флорист Лиза Амбрасовская — обратилась к Алене Клюевой помочь ей с выбором будущего жилья. Рассмотрев варианты, выбор пал на дом 1928 года постройки. Квартира идеально отвечала ожиданиям владельцев: высокие потолки, большие окна, локация в центре Москвы, возможность обустроить интерьер в духе парижских апартаментов.

Автор проекта дизайнер Алена Клюева.
«Смешение классических деталей с современными светильниками и мебелью, винтажные предметы, обилие текстиля — те реперные точки, которые во многом определили стилистику квартиры, — рассказывает автор проекта. — В поисках идеи мы опирались на референсы, в которых было много французских интерьеров, смешение стилей, контрастные детали, цветные акценты, лепнина, высокие окна и двери. И, конечно, цветы — это жизнь для флориста! И еще интересный факт: первым в проекте появился винтажный светильник, удачно вписавшийся в детскую комнату, потом ковер в гостиную — от них все и закрутилось».

Зона гостиной. Специально для интерьера диван из кожи заказали в компании Lavsit, он идеально вписался и по размеру, и по цвету. Винтажное кресло реклайнер в обивке букле заказчица нашла и купила задолго до окончания ремонта. Ковер, декораторское ателье Марка Патлиса. Краска Little Greene, «Студии обоев 1». Инженерная доска, dVplo (Финляндия).

Гостиная зона. ТВ-тумба, стеллажи из латуни — индивидуальное изготовление по эскизам дизайнера, компания Decoracia. Рабочая зона — мастерская Игоря Макарова. Старую обивку винтажного рабочего кресла заменили на новое из ткани Eternity. Двери, Belgravia. Молдинги, потолочные карнизы, Orac.

Фрагмент гостиной. Потолочный светильник, ST Luce. Ковер, декораторское ателье Марка Патлиса.
В отделке использованы исключительно натуральные материалы — это было главным пожеланием владельцев. «Можно с уверенностью сказать, что применение в интерьере натуральных материалов никогда не потеряет свою актуальность и ценность! — отмечает Алена. — Первое, что мы сделали — заменили пластиковые окна во всех помещениях на деревянные, также установили деревянные подоконники.

Вид из гостиной на спальню хозяев и детскую комнату. Вазы Wedgwood, английский фарфор Portmeirion Heritage Collection, антикварные кувшины английской фабрики Dudson, французский фарфор Жакоб Пти, Франция, XIX в. Хозяйка флорист, и вся посуда, вазы, кувшины — часть ее коллекции, которую она собирала годами.

Вид из гостиной на кухню. Кресло — винтажное. Диван, Lavsit. Накладные светильники, Lightstar.
Почти вся мебель была выполнена под заказ с использованием натуральных материалов. Напольное покрытие — доска из массива дерева, на стенах — краска английского бренда Little Greene, которая производится из натуральных компонентов. Детскую превратили в маленький сказочный лес с помощью фрески от Affresco, экологически чистой и устойчивой к выцветанию. В санузле и ванной комнате применили керамическую плитку Equipe, крупноформатный керамогранит под камень и тераццо».

В прихожей обустроен шкаф для ежедневной одежды, для сезонной верхней одежды и обуви предусмотрена компактная гардеробная со входом из гостиной. Чтобы она не бросалась в глаза, дверь в нее сделали скрытой. Шкаф с высокими трехметровыми зеркальными фасадами и черными деталями выполнен на заказ компаний Decoracia. Пуфик от Boucle studio переобит тканью от Dedar. Консоль, La Redoute. Бра — винтажное.

Чтобы любоваться видами, примыкающую к гостиной лоджию застеклили при помощи панорамного остекления.
В основе цветового решения зоны прихожей, гостиной-столовой и кухни — нейтральная база: белый цвет с яркими и контрастными деталями. «В интерьерах с белым стенами очень эффектно выглядят искусство, современная мебель и винтаж», — объясняет решение дизайнер. Акцентом в столовой зоне выступает невероятный оттенок зеленой полыни, на кухне — фасады под дерево оттенка молочного шоколада. Контрастные черные детали (светильники, ножки мебели, столешница, детали на фасаде зеркальных дверей прихожей) добавляют пространству геометрии.

В столовую зону идеально встали стол и стулья российской компании Unika Moblar и подвесной светодиодный светильник от Maytoni. Над столом — картина «Звездочка» Наташи Обуховой, на стене слева — работы художницы Ксении Березовской; в прихожей — картина «Сбор малины» Валерии Рязановой.

Кухня. Мебель выполнена по эскизам дизайнера компанией «Анонс».
Для спальни выбран «безупречный» серый цвет и контрастное золотистое изголовье кровати. Поддерживает его идентичный цвет стен в гардеробной. Благодаря этому приему удалось связать оба помещения.

Главные «экспонаты» в спальне — кровать и гобелен (винтаж 70-х годов), появившийся спонтанно. Хозяйка дома нашла его на выставке в Петербурге и предложила дизайнеру использовать в оформлении. Так здесь появился этот необычный яркий декор, притягивающий внимание. При спальне обустроена гардеробная для хранения вещей, обуви и сумок, мебель для которой выполнена на заказ мастерской Игоря Макарова. Кровать, Lavsit. Торшер, Lucide. Прикроватный столик, Kartell. Бра, Odeon Light. Электроустановочное оборудование, Schneider Electric.
В интерьере спальни маленькой леди царит волшебная атмосфера — стены светло-молочного оттенка, в тон основному цвету фрески, нежные тона тканей, мебели, деликатные детали и винтажная люстра, с которой и началось преображение комнаты.

В детской комнате одна стена превращена в систему хранения, в которой есть шкаф, открытые и закрытые полки, где можно хранить игрушки, книги и одежду. Система хранения выполнена на заказ по эскизам автора в столярной мастерской Игоря Макарова. Визуальные акценты — фреска Affresco и винтажный светильник, купленный хозяйкой на аукционе и удачно вписавшийся в обстановку комнаты. Очарование привносят и детали — контрастный кант на римской шторе и диван Lavsit мятного оттенка.
В ванной доминируют цвета дерева и камня в сочетании с белой сантехникой и плиткой. В санузле тему природных оттенков продолжает плитка в виде шестигранников и стены цвета хвои.

Ванная комната. Мебель — индивидуальное изготовление по эскизам дизайнера, мастерская Игоря Макарова. Плитка, Vitra, Equipe. Напольная раковина, GID.

Санузел. Плитка настенная, Equipe Напольная плитка, Vitra. Краска, Majestic.
Интерьер представляет собой микс разных стилей. Молдинги на стенах, потолочные карнизы, двери с филенками отсылают к классике, на контрасте с которыми эффектно смотрятся современные светильники и мебель, винтажные предметы, а обилие живых цветов и текстиля придают уют и очарование.

Планировка.