Этот интересный современный интерьер с выразительными цветовыми деталями команда студии Анастасии Безматериных спроектировала для молодой семьи — мамы, папы и дочки шести лет.
Площадь: 119 кв. м
У заказчиков есть дача за городом, где они проводят много времени. Они любят путешествовать, и городскую квартиру рассматривали как место релакса и отдохновения, которая бы удивляла гостей и радовала своих владельцев.

Главный дизайнер студии Анастасия Безматериных.
«На создание интерьера нас вдохновила заказчица, — вспоминает главный дизайнер студии Анастасия Безматерных. — Она очень любит синий цвет и представляла диван, кухню только в нем. Мы взяли это пожелание за основу, благодаря чему появилась эта эффектная нейтральная гамма с вкраплениями синего. Также мы добавили немного дерева, и пространство приобрело атмосферу домашнего уюта».

Мягкая мебель подбиралась по принципу удобства посадки и лаконичности форм. Главный герой обстановки гостиной — диван Voltamebel в любимом цвете хозяйки, который стал основой дизайна интерьера. К монументальному дивану дизайнер подобрала легкий и ажурный журнальный столик от Dantone Home. Обеденные и барные стулья (La Forma) выбирались так, чтобы их форма не спорила между собой, а дополняла друг друга. Обеденный стол из массива, Dantone Home. Лепнина (плинтус, карнизы, молдинги), компания «Аратта». Текстиль, «Декор-бюро». Ковер, «Ковер.ру».

Зона кухни-столовой. Барный остров ювелирно отделан широкоформатным керамогранитом — принт плитки сверху плавно переходит на торец, искусно имитируя натуральный камень. Керамика, alfi.ceramics. Потолочный светильник над островом — Maytoni. Над столом — подвесной светильник Arlight.
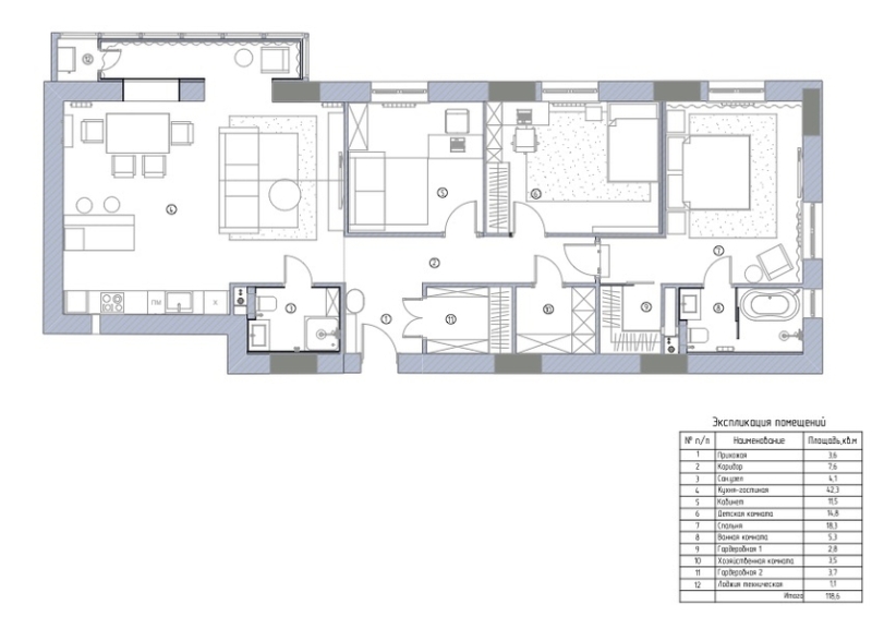
После перепланировки в квартире появились просторная гостиная, отдельная гардеробная для верхней одежды при входе, мастер-спальня с санузлом и своим гардеробом, отдельная детская комната, кабинет хозяина, хозблок и гостевой санузел.

Основное освещение гостиной — встроенный шинопровод, над кухней — встроенные гипсовые точечные светильники. «В кухне-гостиной мы долго думали над оформлением света, так как рядом стоит и обеденный стол, и остров. Нам не хотелось видеть две люстры рядом. Именно поэтому мы повесили светильник из неона над столовой группой, а люстру-подвес — над островом. Благодаря такому оформлению интерьер получился гармоничным, в нем есть как главное, так и второстепенное освещение», — объясняет решение дизайнер. Картина, Анастасия Попова (Галерея Анастасии Поповой). Керамика, alfi.ceramics. Стены окрашены краской Lanors Mons, декорированы молдингами и карнизами от «Аратта».

Вся корпусная мебель в квартире сделана на заказ в Перми по эскизам автора проекта компанией Liga, в том числе, кухня. Ее фасады выполнены в эмали, как и остров, отделанный тонким керамогранитом. Барные стулья, La Forma. Мойка, Смеситель, Omoikiri. Посудомоечная машина, индукционная панель, духовой шкаф, Smeg.
«Мы уменьшили кабинет, благодаря чему кухня-гостиная стала больше (ее площадь сейчас — 42 кв. м), — рассказывает о работе над планировкой Анастасия. — Длинный коридор от застройщика стал короче — тем самым у нас получилось обустроить главную спальню и предусмотреть в этой зоне гардеробную. Немного сдвинули стены у хозяйственного блока и гардероба на входе, тем самым организовали удобные проходы внутри помещения».

«Зона входа, прихожая — лицо дома, — говорит Анастасия. — Она должна быть эффектной и интригующей, побуждать желание посмотреть, что будет дальше. Именно поэтому на потолке мы установили светильник из гипса («Аратта»), изготовленный на заказ. Смотрится он очень стильно и благодаря тому, что слева на всю стену сделано зеркало, это кольцо-светильник красиво дублируется. Для комфорта и удобства обустроили гардеробную за стеклянными дверями от Raumplus — визуально это смотрится легко, но при выключенном свете за темным стеклом не видно одежды». На полу — керамогранит Italon.
Стены окрашены краской. «Мы любим использовать этот материал, так как он не перегружает пространство и смотрится всегда самодостаточно», — объясняет прием дизайнер. Для того чтобы зонировать пространство гостиной-кухни, дополнительно использованы шпонированные панели, ими же облицована дверь-невидимка в санузел. Стену, соседствующую с лоджией, отделали тонким керамогранитом, благодаря чему в интерьере появился необходимый контраст. А для ритма добавили латунные вставки — они отлично перекликаются с другими «золотыми» элементами интерьера.

«При достаточно большой массе синего дивана важно было облегчить гамму. Мы добавили светлые подушки. Ковер тоже выбрали светлый, чтобы разбавить темный пол и поставить диван со столиком на своеобразный «поднос», — объясняет прием дизайнер. Радиаторы, Irsap.

Чтобы не утяжелять коридор, в потолке установили встроенное точечное освещение, оно максимально функционально. Для дополнительного освещения вечером добавили лаконичные бра от Crystal Lux. Двери, компания «Волховец». На полу — SPC ламинат Alpine floor.
В кабинете на стенах — краска и гипсовая лепнина. «Помещение небольшое, и утяжелять его нам совсем не хотелось. С помощью лепнины мы подчеркнули лаконичность объема и добавили ритма», — поясняет Анастасия. В детской комнате зону сна и отдыха выделили обоями, кровать в спальне — мягкими панелями с контрастным молдингом, завершающим композицию. В ванной комнате, как и в санузле, традиционно применен практичный керамогранит.

В кабинете на потолке установили магнитный трековый светильник в виде контура, который собирает интерьер и служит поддержкой контрастным элементам в пространстве — ковру черничного оттенка и предметам мебели. В качестве декора выступают сухоцветы в керамической вазе, они разбавили строгую геометрию пространства и сделали его мягче. Диван изготовлен на заказ в Перми компанией Rubini. Столик журнальный, Cosmo. Письменный стол, корпусная мебель выполнены на заказ компаний Liga. Стул, La Forma. На заказ был сделан и комод, внутри которого скрыт принтер. Стены окрашены краской Argile. Настольная лампа, Mantra.
В основе цветовой концепции — сочетание теплого и холодного, в акцентах преобладают сложные синие тона. «Кухня-гостиная выполнена в одном оттенке с коридором, — говорит автор проекта. — Этот сложный теплый цвет стен отлично перекликается со шпонированными панелями и со стальным оттенком плитки, которой облицована стена с лоджией. Гардероб мы выкрасили в яркий синий. Это логично, так как это нежилое пространство, цвет будет игриво проглядывать из-под одежды.

Спальня хозяев. Чтобы кровать выделялась на фоне мягких панелей, ее сделали из фактурной ткани на заказ в компании Rubini. Прикроватные тумбы (Liga) выполнили в комбинированном оформлении: основа — светлая (в фон интерьера), а контуры — в графичном исполнении, чтобы подчеркнуть геометрию. Любимый синий цвет хозяйки присутствует в постельном белье и ковре (Ковер.ру). Над тумбами разместили подвесы, они служат как дополнительный свет и в то же время на фоне нейтрального изголовья выделяются за счет своей интересной формы. Картина, Анастасия Попова (Галерея Анастасии Поповой). Текстиль, «Декор-бюро».

При спальне обустроена отдельная гардеробная за стеклянной перегородкой, которая не перегружает вход в комнату.
Кабинет выдержан в сложном зеленом оттенке (этот цвет отлично настраивает на рабочий лад), к нему добавили графику с помощью темного мышиного цвета на стыковочном молдинге. Детская комната исполнена в пудровом, хозяйка здесь — девочка, именно поэтому мы и выбрали такую цветовую гамму.

Комната дочери. Система хранения для одежды, изготовленная компаний Liga, плавно «перетекает» в рабочую зону со стеллажом и столом, что в небольшом помещении смотрится цельно и лаконично. Визуальный акцент — люстра, выступающая в качестве декоративного освещения, дополненная встроенными гипсовыми светильниками и гипсовыми бра, окрашенными в цвет стен. Кровать выполнена на заказ компанией Rubini. Пудровую гамму разбавляет кресло от Kartell в эффектной обивке. На окне — римская штора в розовом цвете, который идеально сочетается с общей палитрой интерьера. Лепная розетка, карнизы, Orac.

Текстиль на кровати (покрывало, подушки) с множеством деталей, добавляющих объема. Ковер — как дополнение, выбран в нейтральной гамме. Обои, Wallstreet. Лепные карнизы, Orac. Радиаторы, «КЗТО».
Все помещения мастер-зоны созвучны друг другу, они нейтральны по отделке, только плитка «под мрамор» в ванной смотрится более эффектно на фоне всего остального. В гостевом санузле отделка стен в плитке «под камень» в сером исполнении — нам нужен был нейтральный фон для цветной мебели и светильников».

В мастер-ванной, несмотря на небольшую площадь помещения, удалось разместить отдельно стоящую ванну Whitecross и душевую систему Palazzani. Под раковиной Ceramica Nova — подвесные тумбы для хранения гигиенических принадлежностей, над унитазом — дополнительные системы хранения, за которыми располагается удобный доступ к счетчикам и коммуникациям. Аксессуары, Tezza.
Стилистика интерьера — современная классика. «Изучив пожелания заказчиков, мы пришли к тому, что минимализм или строгая классика им не созвучна — клиентам ближе смешение стилей. Именно поэтому на стенах появилась лепнина, а потолки были выигрышно подчеркнуты карнизами. И, конечно, высокий плинтус — он является важным атрибутом классических пространств», — заканчивает рассказ Анастасия Безматерных.

Планировка квартиры с экспликацией помещений.